Casa - POREČ - 400.000 EUR
| Posizione | POREČ, Istria |
| Prezzo € | 400.000 |
| Superficie | 101 m2 |
| Numero di camere | 3 |
| Superficie terrestre | 293 m2 |
| Bagni | 4 |
| Distanza dal mare | 7000 m |
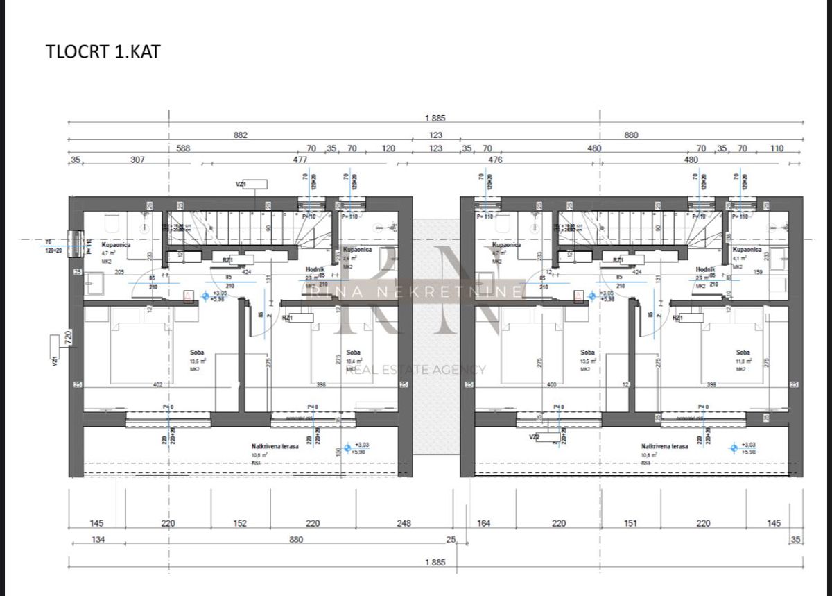
DINTORNI ISTRIA – PARENZO: Casa moderna con piscina e vista mare È in vendita una casa moderna di 101 m² di superficie netta, situata su un terreno di 294 m², in una zona tranquilla della zona di Parenzo. Questa proprietà è un'opportunità ideale per una vita familiare confortevole o come investimento per l'affitto turistico. La costruzione è già iniziata e il progetto dovrebbe essere completato entro l'autunno del 2026. L'investitore è noto per la qualità costruttiva e le moderne soluzioni architettoniche. Disposizione: Piano terra: • Ingresso con guardaroba • Bagno per gli ospiti • Ripostiglio e lavanderia • Soggiorno open space con cucina e sala da pranzo • Accesso alla terrazza coperta e al solarium • Piscina privata di 8x3 m (23 m²) Primo piano: • Due camere da letto, ciascuna con accesso alla terrazza • Due bagni con luce naturale Caratteristiche aggiuntive: • Vista mare • Infissi in PVC di alta qualità a tre strati • Isolamento termico esterno • Riscaldamento a pavimento e aria condizionata per riscaldamento e raffrescamento • Due posti auto Questa casa in vendita in Istria offre la perfetta combinazione di design moderno e funzionalità. Sono stati utilizzati materiali di alta qualità e il progetto è stato adattato ai moderni standard di efficienza energetica e comfort. Prezzo: 400.000 EUR Per ulteriori informazioni e una visita, si prega di contattare: RINA Tel: +385 99 640 1751
ID: 1212853