Casa - POREČ - 450.000 EUR
| Posizione | POREČ, Istria |
| Prezzo € | 450.000 |
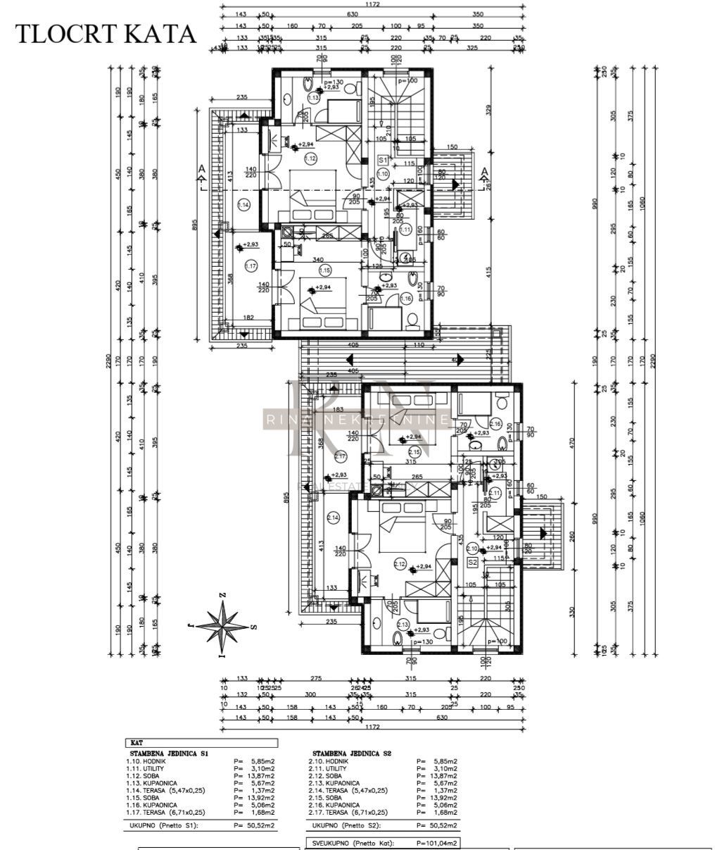
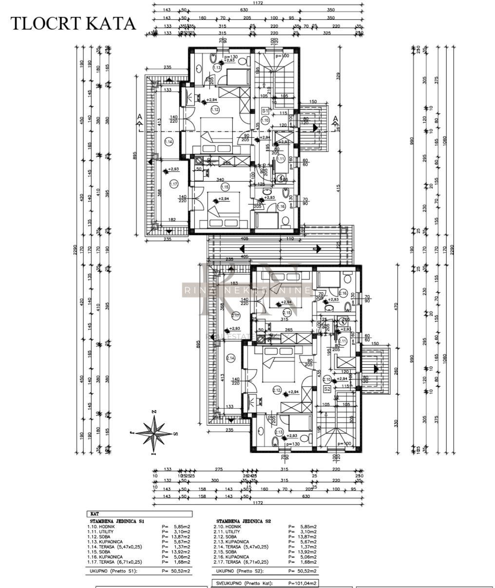
| Superficie | 136 m2 |
| Numero di camere | 4 |
| Superficie terrestre | 469 m2 |
| Bagni | 4 |
| Distanza dal mare | 4000 m |
CASA MODERNA IN COSTRUZIONE CON PISCINA NEI PRESSI DI PARENZO – VISTA SUL VERDE E SUL MARE In un tranquillo e piacevole contesto residenziale a carattere familiare, circondato dal verde, da moderne nuove costruzioni e da autentiche case istriane tradizionali, si trova questa casa moderna di qualità su due livelli in costruzione, progettata come abitazione funzionale a lungo termine e come investimento sicuro con ottimo potenziale. La posizione garantisce privacy e tranquillità, offrendo al contempo un collegamento rapido e semplice con il mare e la città. Il completamento dei lavori è previsto per giugno 2026 e l’immobile sarà consegnato chiavi in mano, con area esterna sistemata e documentazione completa. CARATTERISTICHE PRINCIPALI Superficie della casa: 136 m² Superficie del terreno: 469 m² Giardino con piscina 8 x 4 m 3 camere da letto 3 bagni 2 posti auto Riscaldamento a pavimento in tutta la casa Aria condizionata in tutti gli ambienti DISTRIBUZIONE DEGLI SPAZI PIANO TERRA Il piano terra comprende: ingresso soggiorno open space con cucina e zona pranzo locale tecnico / ripostiglio / lavanderia bagno di servizio camera da letto con bagno privato Dal soggiorno e dalla camera si accede direttamente alla terrazza coperta, al giardino e alla piscina. PIANO SUPERIORE Al piano superiore si trovano: due camere da letto, ciascuna con bagno privato accesso alla terrazza da entrambe le camere vista aperta sul verde e sul mare SPAZI ESTERNI L’area esterna include: piscina 8 x 4 m area solarium giardino curato due posti auto privati ARCHITETTURA E QUALITÀ COSTRUTTIVA Casa moderna su due livelli, caratterizzata da linee pulite, qualità costruttiva e un’estetica senza tempo, perfettamente integrata nell’ambiente circostante. POSIZIONE circa 4 km dalle spiagge, facilmente raggiungibili anche in bicicletta circa 5 km dal centro di Parenzo vicinanza a tutti i servizi principali, in un contesto tranquillo e riservato PERCHÉ SCEGLIERE QUESTA PROPRIETÀ contesto familiare e tranquillo nuova costruzione di qualità design moderno ed elegante piscina e giardino vista sul verde e sul mare eccellente equilibrio tra privacy e servizi Un’opportunità rara per chi cerca una casa di qualità nei pressi di Parenzo. Un investimento intelligente oggi – un valore sicuro per il futuro. INFORMAZIONI AGGIUNTIVE completamento previsto entro giugno 2026 riscaldamento a pavimento e aria condizionata documentazione completa e regolare ideale come abitazione o investimento PER MAGGIORI INFORMAZIONI E VISITE Mobitel / Viber / WhatsApp: +385 91 2848 310, VIŠNJA
ID: 1243657