Casa - POREČ - 598.000 EUR
| Posizione | POREČ, Istria |
| Prezzo € | 598.000 |
| Superficie | 125 m2 |
| Numero di camere | 4 |
| Superficie terrestre | 230 m2 |
| Bagni | 4 |
| Vicino ai trasporti | Si |
| Distanza dal mare | 900 m |
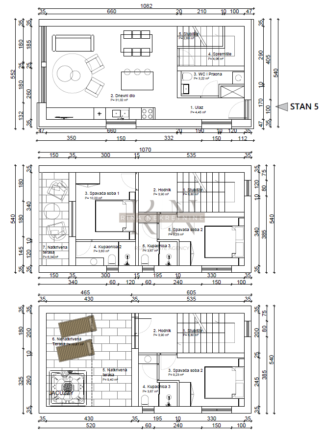
POREČ NUOVA COSTRUZIONE CON VISTA MARE – PRONTA PER ABITARE CON PISCINA In una zona tranquilla ma urbana di Parenzo, a soli 900 metri dal mare e dalla spiaggia, sorge una moderna nuova costruzione di alta qualità realizzata da un noto investitore istriano. Il progetto comprende tre appartamenti (75 m², 85 m² e 93,42 m²) e due case, di cui una con piscina privata. La posizione è estremamente attraente – il centro e la città vecchia di Parenzo distano solo 2,5 km, collegati da una passeggiata lungo mare. CASA 5 Superficie abitabile: 125 m² Terreno: 230 m² La casa si sviluppa su tre piani e offre una perfetta combinazione di design moderno, comfort e splendida vista mare. È completamente finita, pronta per essere abitata e dotata di tutta la documentazione regolare. DISTRIBUZIONE Piano terra: ingresso, soggiorno open space con cucina e zona pranzo, bagno e lavanderia. Dal soggiorno si accede alla terrazza con piscina di 24 m². Primo piano: due camere da letto con bagno privato (en suite), una delle quali con terrazza vista mare. Secondo piano: camera matrimoniale con bagno, spazio per armadi a muro e ampia terrazza con jacuzzi e magnifica vista mare. CARATTERISTICHE Riscaldamento a pavimento con pompa di calore Aria condizionata per riscaldamento e raffreddamento Materiali di costruzione di alta qualità Distribuzione funzionale e ben progettata PREZZO 598.000 € CONTATTO Višnja 091 2848 310 +385 91 2848 310 Contattateci con fiducia – la vostra nuova casa a Parenzo vi aspetta. Nuova costruzione con vista mare a Parenzo – ideale per vivere o come investimento in Istria.
ID: 1225375