Casa - POREČ - 598.000 EUR
| Posizione | POREČ, Istria |
| Prezzo € | 598.000 |
| Superficie | 116 m2 |
| Numero di camere | 4 |
| Superficie terrestre | 150 m2 |
| Bagni | 4 |
| Vicino ai trasporti | Si |
| Distanza dal mare | 0 m |
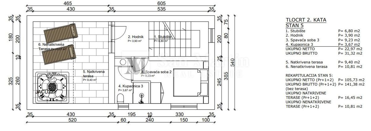
Parenzo, Casa di lusso con piscina e ampia terrazza con vista sul mare Al piano terra della casa si trova un'ampia zona giorno con cucina a vista e sala da pranzo collegata da grandi vetrate al cortile dove si trova una piscina di 25 mq. C'è anche un ripostiglio e un bagno per gli ospiti qui. Al primo piano ci sono due camere da letto, ciascuna con il proprio bagno e una con il proprio terrazzo coperto. Al secondo piano si trova una terza camera da letto con bagno e un ampio terrazzo parzialmente coperto con una bellissima vista sul mare. Il riscaldamento e il raffreddamento sono forniti dal riscaldamento a pavimento in tutte le stanze e dai condizionatori d'aria Questa proprietà esclusiva in una posizione ambita viene venduta nella fase chiavi in mano e il completamento dei lavori è previsto per la tarda primavera del 2025. L'immobile è incluso nel sistema IVA, quindi l'acquirente non deve pagare l'imposta sulla vendita dell'immobile. Grazie alla sua posizione, questo è un ottimo investimento per il turismo e per una vita confortevole al mare. La provvigione dell’agenzia per l’acquirente ammonta al 3% + IVA (totale 3,75%) ed è pagabile al momento della firma del contratto preliminare. Nel caso in cui il contratto preliminare non venga stipulato, la provvigione dell’agenzia è pagabile immediatamente alla firma del contratto principale di compravendita. La visita dell’immobile è possibile solo dopo la firma del contratto di mediazione. L’agenzia non è responsabile per eventuali errori, omissioni o inesattezze nel testo e nella descrizione dell’annuncio.
ID: 1250814