Casa - POREČ - 716.000 EUR
| Posizione | POREČ, Istria | 
| Prezzo € | 716.000 | 
| Superficie | 205 m2 | 
| Numero di camere | 4 | 
| Superficie terrestre | 542 m2 | 
| Bagni | 3 | 
| Distanza dal mare | 10000 m | 
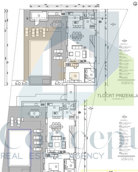
In vendita una casa bifamiliare situata in un tranquillo quartiere nei dintorni di Poreč, a 10 km dal mare e 12 km dalla città. La casa avrà circa 205 m², distribuiti su due piani. Al piano terra si troverà un ingresso, un ampio soggiorno con cucina e sala da pranzo in open space, un bagno e una camera da letto con bagno privato. Dal soggiorno si uscirà su una terrazza coperta e un giardino che avrà una piscina, un ripostiglio e una cucina estiva. Al primo piano si troveranno altre due camere da letto, ognuna con il proprio bagno, oltre a una terrazza coperta e una non coperta. La casa sarà orientata a sud-ovest, con vista aperta sul mare. La casa bifamiliare sarà collegata all'altra unità solo tramite il locale tecnico, mentre una siepe o un muro garantiranno ulteriore privacy. Il riscaldamento sarà previsto tramite pompa di calore, mentre per il raffreddamento si utilizzeranno i climatizzatori. Il termine dei lavori è previsto per dicembre 2025. Per ulteriori informazioni e per organizzare una visita, non esitate a contattarci.
ID: 1227931