Casa - POREČ - 760.000 EUR
| Posizione | POREČ, Istria |
| Prezzo € | 760.000 |
| Superficie | 229 m2 |
| Numero di camere | 4 |
| Superficie terrestre | 914 m2 |
| Bagni | 4 |
| Distanza dal mare | 11000 m |
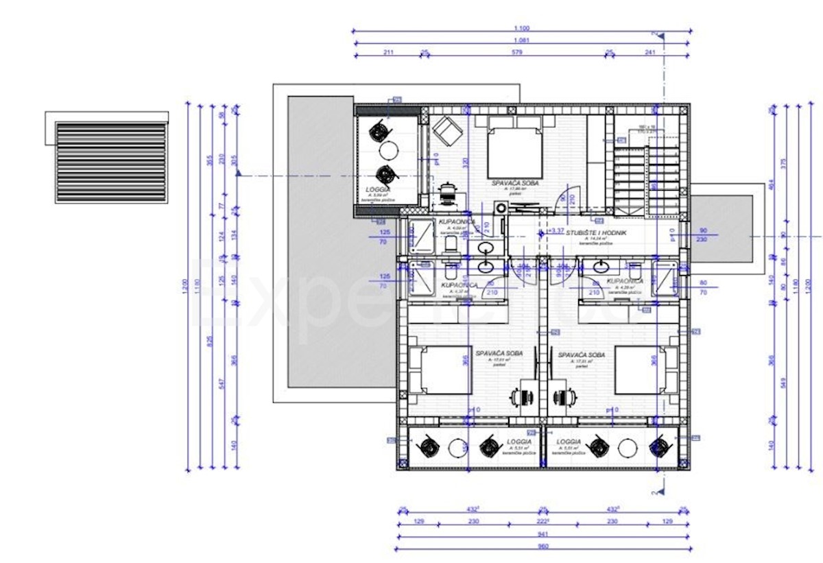
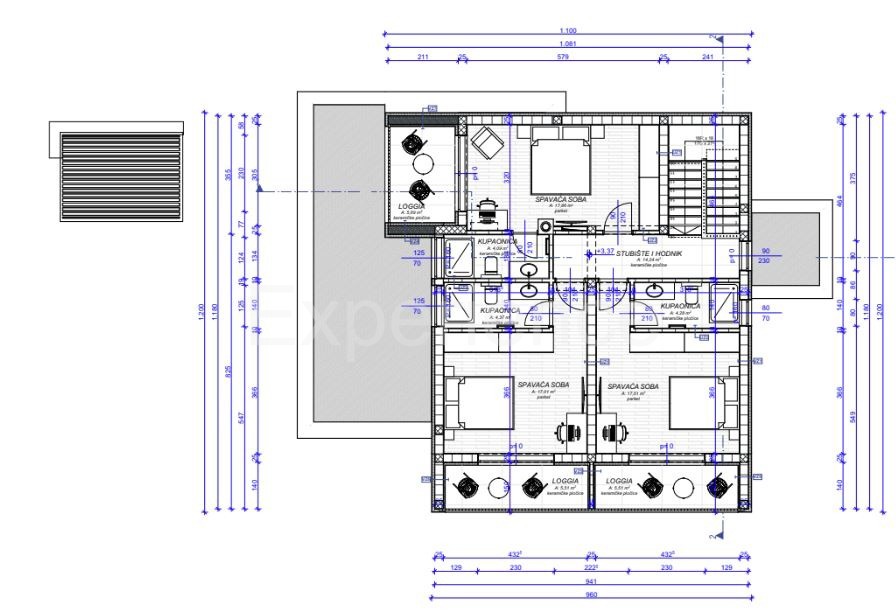
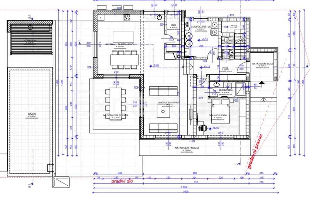
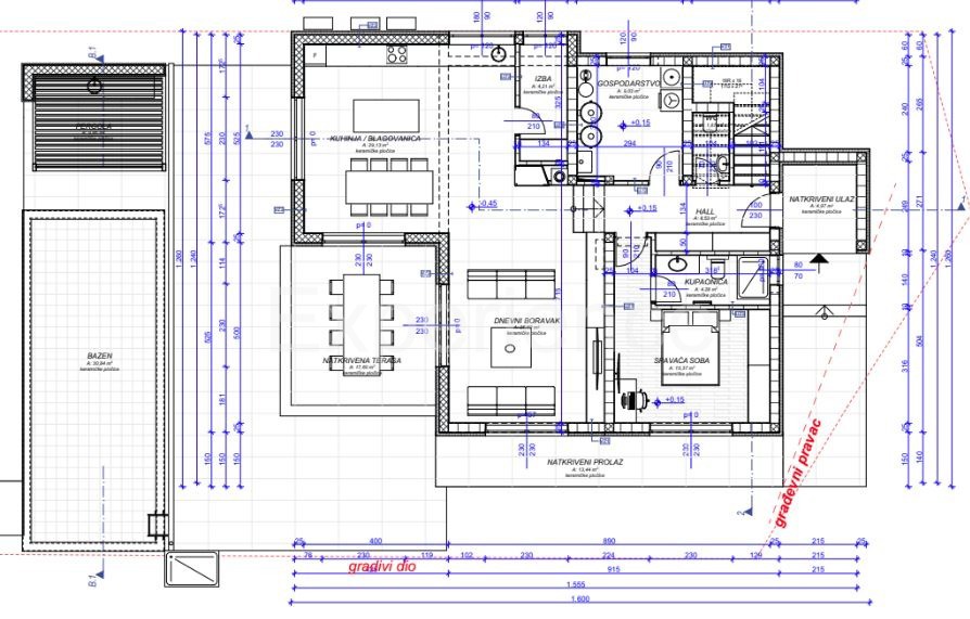
Nelle vicinanze di Parenzo, in una posizione idilliaca a ca. 11 km dalla costa e dal centro della città, è in vendita una villa con piscina che rappresenta un perfetto connubio tra design moderno e comfort. La superficie netta totale della villa è di 229,82 m², distribuita su due piani che offrono uno straordinario spazio per una vita confortevole. Al piano terra si trova il corridoio, cucina e sala da pranzo con accesso ad un spzioso terrazzo coperto, soggiorno, camera da letto con il proprio bagno, un locale tecnico e toilette. Mentre al primo piano sono situate tre camere da letto, ciascuna con il proprio bagno e balcone. Nel giardino sarà installata la piscina (30,84 m²) con zona prendisole. Descrizione tecnica:- struttura del tetto: soletta in cemento armato spessore 18 cm, isolamento termico e idrico,- le costruzioni del soppalco sono realizzate come una soletta in cemento armato con uno spessore di 18 cm,- la facciata viene eseguita come sistema di facciata ETICS costituito da isolamento termico con uno spessore di 8 cm e uno strato finale di facciata,- la carpenteria esterna è fornita da carpenteria in PVC, con alza tapparelle elettriche e zanzariere integrate,- porta interna: design in legno realizzato con impiallacciatura naturale trattata,- i pavimenti sono realizzati come "pavimenti galleggianti" con isolamento termico e acustico,- rivestimenti dei pavimenti: ceramica al piano terra, mentre nelle camere è previsto il parquet,- il riscaldamento è fornito tramite una pompa di calore che funge da fonte energetica per il riscaldamento dell'acqua calda sanitaria e del riscaldamento a pavimento. Per il riscaldamento degli ambienti nel periodo transitorio e per il raffrescamento sono previsti sistemi split (pompe di calore). Verrà installata anche una canna fumaria nel soggiorno,- cancelli d'ingresso ad apertura automatica,- il giardino sarà un prato con piante mediterranee piantate, irrigazione automatica,- illuminazione esterna, tre posti auto, impianto di allarme e impianto di videosorveglianza.
ID: 1048367