Casa - POREČ - 775.000 EUR
| Posizione | POREČ, Istria | 
| Prezzo € | 775.000 | 
| Superficie | 170 m2 | 
| Numero di camere | 4 | 
| Superficie terrestre | 968 m2 | 
| Bagni | 3 | 
| Distanza dal mare | 17000 m | 
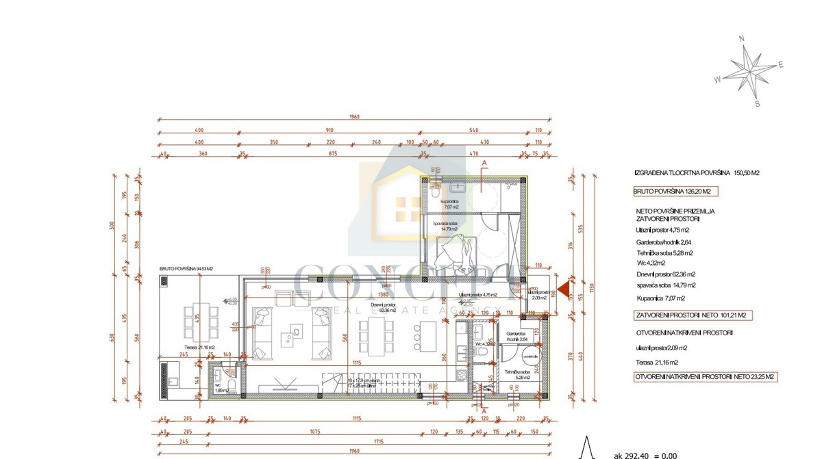
Al confine della zona edificabile, in un ambiente tranquillo, si sta costruendo questa villa attraente che offrirà un connubio di architettura moderna, materiali di alta qualità e un'atmosfera accogliente. Su un terreno di 968 m² è prevista la costruzione di una villa con superficie lorda di 230 m² e superficie netta di 170 m². Al piano terra sono previsti un ripostiglio, una lavanderia, un bagno, una camera da letto con bagno privato, una spaziosa cucina e sala da pranzo, oltre a un soggiorno. Dal soggiorno si accede a una terrazza coperta con cucina estiva e un ulteriore bagno. Al primo piano si trova una camera da letto con bagno privato e la camera da letto principale (master) con bagno, cabina armadio e una spaziosa terrazza che offre una vista sul paesaggio naturale. Nel giardino è previsto un piscina di 40 m², accanto alla quale sarà collocato uno spazio appositamente arredato per socializzare e rilassarsi attorno al fuoco, il cosiddetto "fire pit". L'intera proprietà sarà recintata da un muro, e all'interno del giardino sarà garantito uno spazio per il parcheggio di tre o quattro auto. La villa sarà venduta con la formula "chiavi in mano" (senza mobili). I mobili mostrati nelle visualizzazioni possono essere offerti con un supplemento. Per ulteriori informazioni e per organizzare una visita, non esitate a contattarci.
ID: 1227959