Casa - POREČ - 820.000 EUR
| Posizione | POREČ, Istria |
| Prezzo € | 820.000 |
| Superficie | 233 m2 |
| Numero di camere | 3 |
| Superficie terrestre | 543 m2 |
| Bagni | 4 |
| Distanza dal mare | 4000 m |
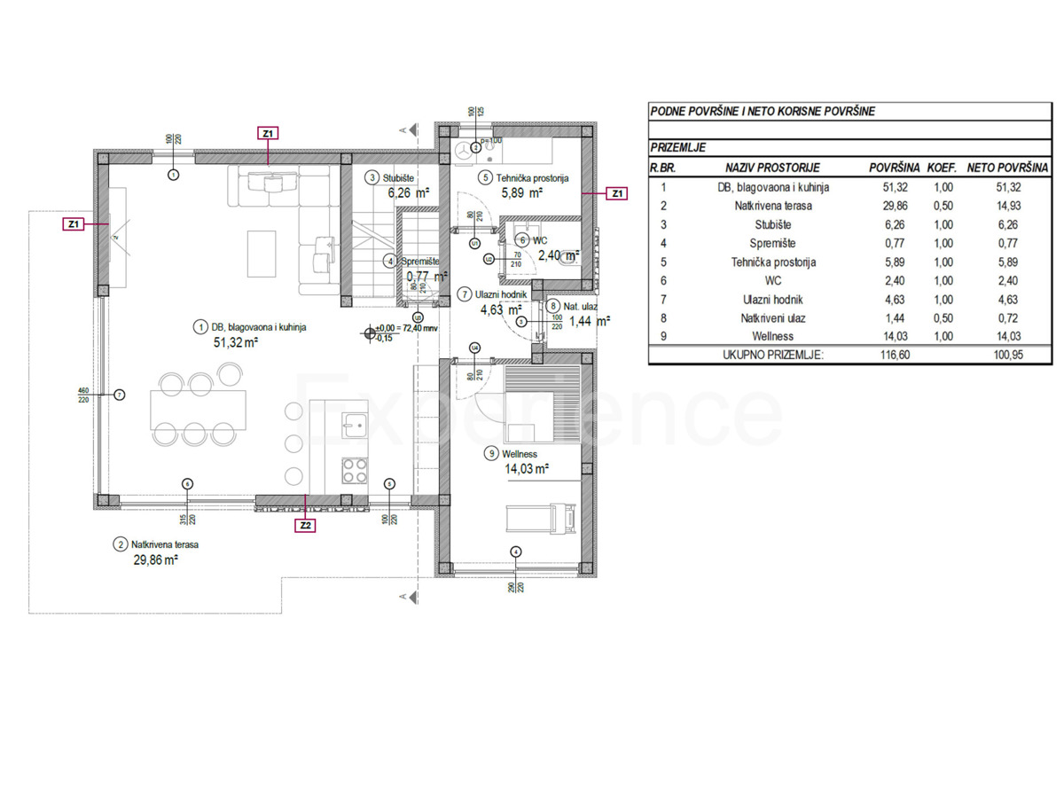
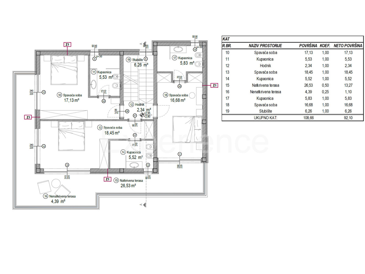
Nelle vicinanze di Parenzo - ca. 4 km dal mare e dal centro della città, in un ambiente molto tranquillo, è in vendita una villa di lusso in costruzione, con la superficie complessiva di 233,13 m². La villa è caratterizzata da un design moderno e attraente con ampie superfici vetrate con vista sul paesaggio circostante. La villa si sviluppa su tre piani: piano terra, primo piano e mansarda. Al piano terra della villa sono situati: un spazio aperto e luminoso nel quale si trovano il soggiorno, la cucina e la sala da pranzo con accesso ad un spazioso terrazzo coperto (29,86 m²), wellness con sauna, locale tecnico, deposito e toilette. Al primo piano della villa sono situate tre camere da letto, ognuna con il proprio bagno e con accesso ad un spazioso terrazzo. Mentre nella mansarda della villa si trovano la sauna, bagno, due depositi e un spazioso terrazzo (77,80 m²). Dalla terrazza si estende una bellissima vista sul mare. La villa ha il giardino di 543 m². Nel giardino paesaggistico sarà costruita la piscina (27 m²). È previsto il riscaldamento a pavimento tramite pompa di calore e condizionatori d'aria per il raffreddamento. Il completamento previsto della costruzione è entro il 31. dicembre 2024. Notando, l'acquirente nell'acquisto della proprietà non paga l'imposta sulle vendite immobiliari.
ID: 917262