Casa - POREČ - 985.000 EUR
| Posizione | POREČ, Istria |
| Prezzo € | 985.000 |
| Superficie | 350 m2 |
| Numero di camere | 5 |
| Superficie terrestre | 1630 m2 |
| Bagni | 6 |
| Distanza dal mare | 0 m |
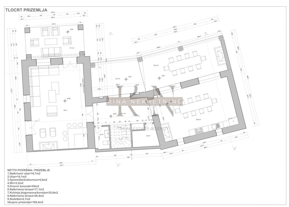
STRA - POREČ A soli 10 km dal centro di Parenzo si trova questa villa istriana in pietra unica, completamente privata su un terreno di 1630 m2. Con vista sul verde e sui campi agricoli, accesso privato dalla strada bianca che sarà sistemata dall'investitore. La villa istriana risale al 1700 e ha un irresistibile fascino. La villa è in fase di ricostruzione e ristrutturazione di alta qualità. La spaziosa villa al piano superiore avrà 4 camere da letto con altrettanti bagni, mentre al piano terra ci sarà un bagno per gli ospiti, un ampio soggiorno completamente separato con accesso a una terrazza coperta con recinzione in ferro battuto, una cucina separata con sala da pranzo e accesso a una terrazza esterna coperta con vero camino (più chiaro nella pianta). Lo spazio sotto il tetto sarà progettato a seconda delle preferenze dell'acquirente, con alcune idee come la zona notte, lo spogliatoio, lo spazio di lavoro o altro. Il soggiorno e la cucina si affacciano su una splendida piscina di 11x4 metri rivestita di ceramica e una zona solarium. Accanto alla piscina ci sarà una piccola casa in pietra adibita a centro benessere con palestra, sauna, vasca idromassaggio e WC. Poiché solo 400 m2 del terreno di 1630 m2 sono agricoli, è possibile concordare la costruzione di un edificio accessorio per garage o altro (a pagamento). La fase attuale della ristrutturazione consente all'acquirente di influire completamente sull'aspetto finale dell'interno della villa. Riscaldamento a pavimento, aria condizionata in ogni stanza. Documentazione in regola. Prezzo 985.000 euro Contattateci con fiducia! RINA +385 99 640 1751
ID: 893116