Terreno - POREČ - 373.500 EUR
| Posizione | POREČ, Istria |
| Prezzo € | 373.500 |
| Superficie | 958 m2 |
| Numero di camere | 6 |
| Superficie terrestre | 958 m2 |
| Bagni | 5 |
| Distanza dal mare | 0 m |
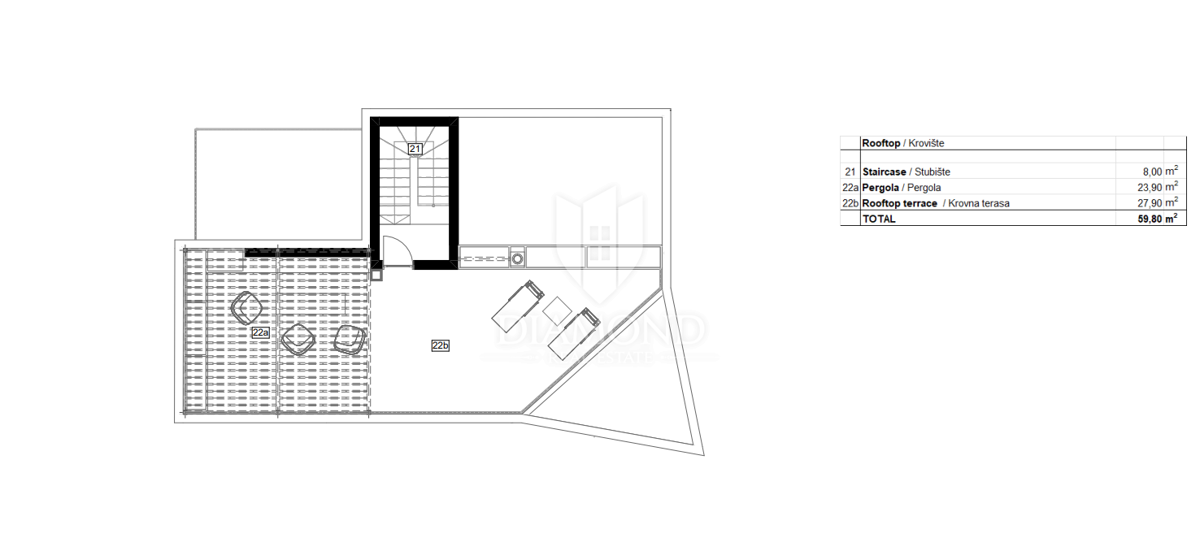
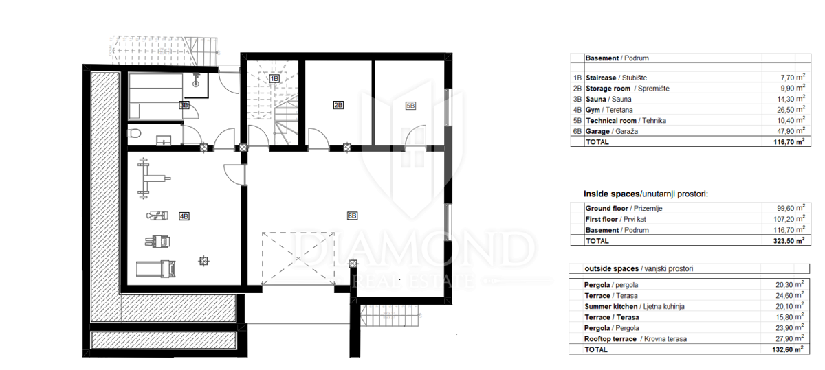
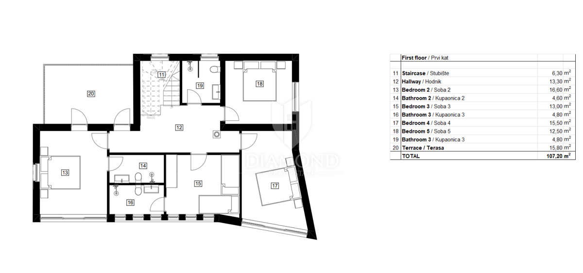
Parenzo, dintorni, terreno con licenza edilizia e vista mare Nella periferia della città di Parenzo, a soli 10 km di distanza, è in vendita questo fantastico terreno edificabile con vista aperta sul mare già dal piano terra. La superficie totale è di 958 mq con utenze a pagamento e collegamenti infrastrutturali. Il progetto prevede una villa spaziosa con un totale di tre piani e 323,50 m2. La villa si sviluppa su tre piani. Il piano interrato è previsto per una sala fitness, una sauna, un locale tecnico, un ripostiglio e un garage separato per le auto. Una scala in pietra conduce al primo piano, dove sono previsti un ampio soggiorno, sala da pranzo e cucina open space, camera da letto, bagno e toilette. Dal soggiorno si accede direttamente alla terrazza coperta con vista sul mare. Al secondo piano ci sono altre quattro camere da letto nel progetto, due delle quali avrebbero il proprio bagno e le altre due avrebbero un bagno in comune. Sul tetto è presente una terrazza panoramica coperta da un pergolato che offre una vista panoramica aperta sul mare. Nel cortile è prevista una cucina estiva. Ristoranti, una scuola, un asilo, un ufficio postale, un negozio, una chiesa e sentieri per piacevoli passeggiate a piedi o in bicicletta nella natura non sono lontani dal paese stesso. Le prime spiagge e villaggi turistici si trovano a soli 8 km dal luogo. Il nuovo proprietario sta proseguendo la costruzione di questa imponente villa. Questo fantastico terreno con permesso di costruzione è un'opportunità di investimento ideale per i futuri proprietari.
ID: 1069295