Appartamento - POVILE - 385.000 EUR
| Posizione | POVILE, NOVI VINODOLSKI, Quarnaro |
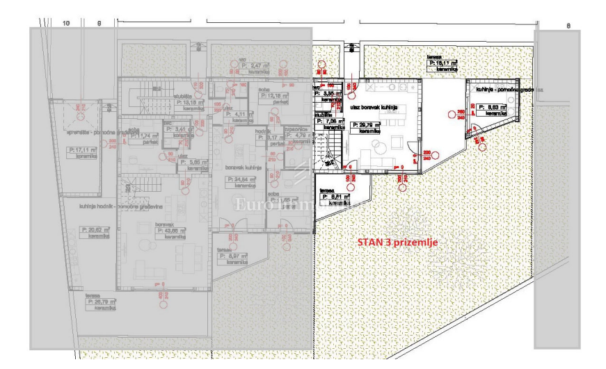
| Prezzo € | 385.000 |
| Superficie | 107 m2 |
| Numero di camere | 3 |
| Bagni | 2 |
| Distanza dal mare | 250 m |
A soli 250 metri dalla spiaggia è in costruzione un moderno edificio con un totale di sei appartamenti. Situato sopra la strada principale, l’edificio offre una vista mare già dal piano terra. Ogni appartamento dispone di un posto auto di proprietà, con possibilità di acquistare anche un garage. Gli appartamenti al piano terra includono una porzione di giardino privato, mentre quelli ai piani superiori dispongono di balconi e ampie terrazze. L’edificio viene venduto chiavi in mano e, durante la fase di costruzione, è possibile scegliere le pavimentazioni e concordare alcune modifiche interne. Il completamento dei lavori e il trasferimento sono previsti per fine 2025. L’investitore è serio e affidabile, con numerosi progetti realizzati e fondi garantiti per il completamento della costruzione. Provizija agencije za kupca iznosi 3% + PDV i plaća se u slučaju kupovine nekretnine kod zaključenja kupoprodajnog Ugovora.
ID: 1238688