Appartamento - POVLJANA - 175.000 EUR
| Posizione | POVLJANA, PAG, Zara-Dalmazia-Nord |
| Prezzo € | 175.000 |
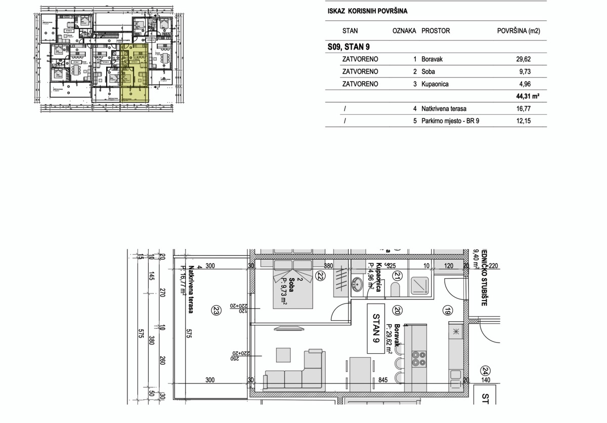
| Superficie | 44 m2 |
| Numero di camere | 2 |
| Bagni | 1 |
| Vicino ai trasporti | Si |
| Distanza dal mare | 0 m |
Sull'isola di Pag, nel tranquillo e affascinante paese di Povljana, è situato un moderno edificio residenziale con un totale di 15 appartamenti. La posizione è ideale per godere dello stile di vita mediterraneo. L’edificio si trova in una posizione eccellente, a soli 300 metri dal mare e 500 metri dalla spiaggia attrezzata, offrendo un perfetto equilibrio tra comfort, eleganza e bellezze naturali. Costruzione e materiali di qualità L’immobile è costruito con particolare attenzione alla qualità, alla durabilità e al comfort abitativo. La struttura è in cemento armato, con eccezionale stabilità statica, mentre i muri divisori interni sono realizzati in blocchi di laterizio. La facciata è isolata termicamente e impermeabilizzata con 10 cm di polistirene, garantendo un’elevata efficienza energetica. Il riscaldamento e il raffreddamento sono assicurati da condizionatori Bosch in ogni ambiente. Gli appartamenti sono dotati di porte d’ingresso antieffrazione e antincendio, infissi in PVC a doppio vetro e pavimenti in ceramica. La classe energetica prevista è A. Posizione attraente L’appartamento si trova in una posizione estremamente favorevole e tranquilla, a pochi minuti a piedi dal mare e dal centro di Povljana. Dall’appartamento si gode una vista sul mare, sull’isola di Vir e su una parte più ampia del paese. Povljana è un luogo piacevole e orientato alla famiglia, che offre tutto il necessario per una permanenza di qualità e la vita quotidiana, inclusi ufficio postale, ambulatorio, scuola, negozi, panetterie, pasticcerie e un porto turistico per imbarcazioni di piccole dimensioni. Povljana come connubio tra magia mediterranea e comfort moderno Povljana è un pittoresco paese costiero sull’isola di Pag, noto per il mare cristallino e le belle spiagge di ciottoli e sabbia. Il paese incanta con la combinazione di architettura tradizionale dalmata e uno stile di vita contemporaneo. Con una ricca offerta gastronomica, in cui spiccano il formaggio di Pag e l’agnello di alta qualità, Povljana offre numerose opportunità per il relax e il tempo libero. Gli amanti della natura possono esplorare calette nascoste e spiagge incontaminate, ideali per fuggire dalla folla e godere di completa tranquillità. L’isola di Pag è ottimamente collegata alla terraferma. Le linee dei traghetti operano durante tutto il giorno, mentre il ponte di Pag consente l’accesso in auto senza traghetto. L’aeroporto di Zemunik a Zara dista circa 1 ora di guida, e linee di aliscafi collegano Novalja con Fiume, Rab e Lussino. La proprietà è regolare e libera da vincoli. Questo immobile rappresenta un’ottima opportunità per una vita confortevole, una vacanza o un investimento a lungo termine, grazie alla costruzione di qualità, alla posizione attraente e alla vicinanza al mare. DESCRIZIONE DELL’APPARTAMENTO: Appartamento S9 - 1° piano - superficie abitabile 44,31 m2 (1 camera da letto + bagno) + terrazza coperta (16,77 m2 - SO) + posto auto esterno PM09, superficie netta totale 55,13 m2 = 175.000 EUR Data di consegna: 06/2026 L’acquirente NON paga commissioni d’agenzia Per ulteriori informazioni e per organizzare una visita, non esitate a contattarci. SAN PATRIK PREMIUM STANDARD La proprietà è rappresentata dall'agenzia boutique San Patrik che offre consulenza professionale e un approccio individuale a ogni acquirente. Il nostro ruolo è garantire documentazione verificata, completa sicurezza legale e un processo di compravendita trasparente con accesso a tutte le informazioni chiave prima di prendere la decisione di acquisto.
ID: 1249595