Tutti tipi
Case
Appartamenti
Terreni
Uffici
Provincia
...
Istria
Quarnaro
Spalato-Dalmazia-Sud
Ragusa
Sebenico-Dalmazia
Zara-Dalmazia-Nord
Zagabria
Bjelovarsko-bilogorska
Brodsko-posavska
Karlovac
Koprivniško-križevska
Krapinsko-zagorska
Ličko-senjska
Međimurje
Osijek-Baranja
Požeško-slavonska
Sisačko-moslavačka
Varaždinska
Virovitiško-podravska
Vukovarsko-srijemska
Zagabria-Dintorni
Comune
...
ZADAR
PAŠMAN
STANKOVCI
BENKOVAC
BIBINJE
BIOGRAD NA MORU
PAG
DUGI OTOK
POLIČNIK
GRAČAC
SUKOŠAN
POLAČA
SVETI FILIP I JAKOV
PAKOŠTANE
GALOVAC
OBROVAC
JASENICE
RAŽANAC
UGLJAN
NIN
NOVIGRAD
POSEDARJE
PRIVLAKA
STARIGRAD
ZEMUNIK DONJI
ŠKABRNJE
VIR
VRSI
CittÃ
...
BOŠANA
DINJIŠKA
GORICA
KOLAN
KOŠLJUN
MANDRE
PAG
POVLJANA
SMOKVICA
STARA VAS
ŠIMUNI
VLAŠIĆI
Tipo
Tutti
Case
Appartamenti
Terreni
Uffici
Prezzo
da
a
Distanza dal mare (m)
da
a
Criterio
Più recenti
Meno recenti
Più costosi
Meno costosi
Cerca
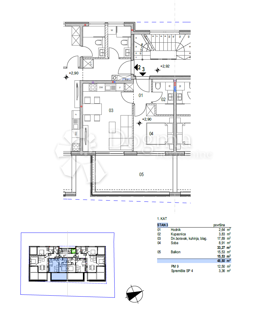
Appartamento - POVLJANA - 250.000 EUR
Previous
Next
Posizione
POVLJANA, PAG, Zara-Dalmazia-Nord
Prezzo €
250.000
Superficie
48 m
2
Numero di camere
2
Bagni
1
Vicino ai trasporti
Si
Distanza dal mare
10 m
ID: 1043627
Invia messaggio
Nome
E-mail
Tel.
9 + 9 =
Messaggio
Invia
Annulla