Appartamento - POVLJANA - 320.400 EUR
| Posizione | POVLJANA, PAG, Zara-Dalmazia-Nord |
| Prezzo € | 320.400 |
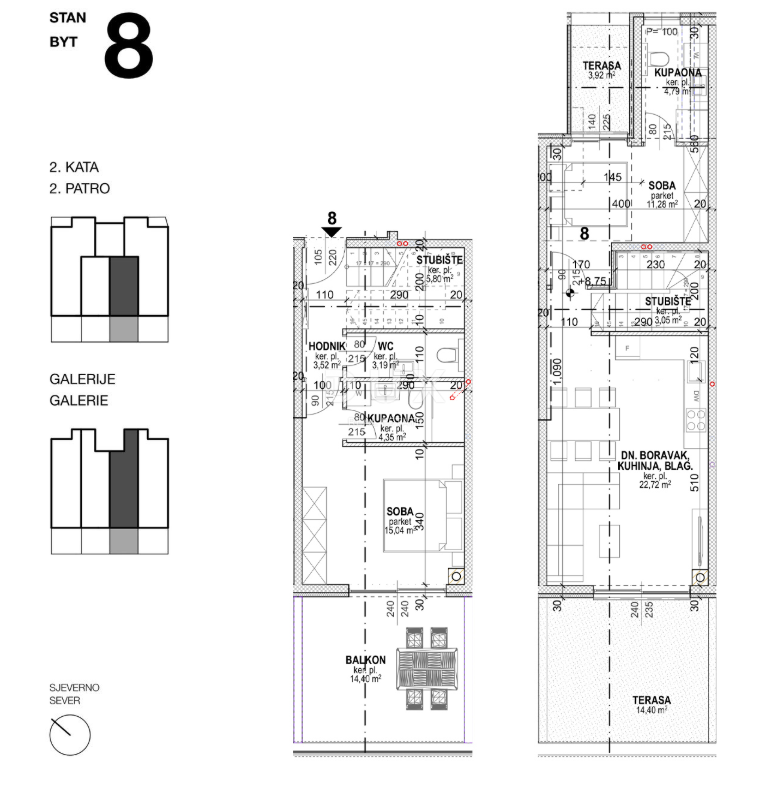
| Superficie | 85 m2 |
| Numero di camere | 3 |
| Bagni | 2 |
| Vicino ai trasporti | Si |
| Distanza dal mare | 250 m |
ISOLA DI PAG, POVLJANA - OCCASIONE! Appartamento di nuova costruzione al 2° piano S8 Se state cercando la proprietà ideale che combini comfort moderno e stile di vita mediterraneo, questi appartamenti a Povljana, sull'isola di Pag, sono l'occasione perfetta. L'appartamento al 2° piano di un edificio con ascensore è composto da due camere da letto, un bagno, una cucina con soggiorno, un ripostiglio, una terrazza e un posto auto. L'appartamento si sviluppa su due piani. Questo complesso residenziale moderno è stato progettato con particolare attenzione alla qualità, alla praticità e al valore a lungo termine. Ecco i principali vantaggi che distinguono questa offerta sul mercato: Caratteristiche principali dell'immobile: Infrastruttura moderna: l'edificio è dotato di un moderno ascensore, che garantisce l'accessibilità universale e un elevato livello di comfort per tutte le generazioni. Posti auto inclusi: un posto auto esterno è incluso nel prezzo di ogni appartamento, risolvendo una delle maggiori sfide durante la stagione estiva. Posti auto aggiuntivi: ogni appartamento dispone di un proprio deposito seminterrato. Gli acquirenti hanno il privilegio di scegliere un ripostiglio in base alle proprie preferenze (a seconda della disponibilità), con superfici che vanno da 3,40 m² a 5,70 m². Perché investire in questo progetto? Questa proprietà non è solo una casa, ma anche un investimento intelligente. La modernizzazione e gli elevati standard costruttivi garantiscono: Ritorno sull'investimento: Elevato potenziale di locazione turistica o rivendita. Qualità della vita: Vivere senza pensieri con dotazioni di alto livello. Attrattività del mercato: Un edificio con ascensore e parcheggio custodito è una rarità che mantiene sempre il suo prezzo. Entrate nel futuro senza preoccupazioni. Che stiate cercando un rifugio per le vacanze o un investimento con un ottimo potenziale, questi appartamenti a Povljana offrono standard che soddisfano anche gli acquirenti più esigenti. Gentili clienti, la commissione di agenzia viene addebitata in conformità con i Termini e Condizioni Generali. www.dux-nekretnine.hr/opci-uvjeti-poslovanja
ID: 1265781