Appartamento - PRIMOŠTEN - 323.000 EUR
| Posizione | PRIMOŠTEN, Sebenico-Dalmazia |
| Prezzo € | 323.000 |
| Superficie | 73 m2 |
| Numero di camere | 3 |
| Bagni | 1 |
| Distanza dal mare | 1400 m |
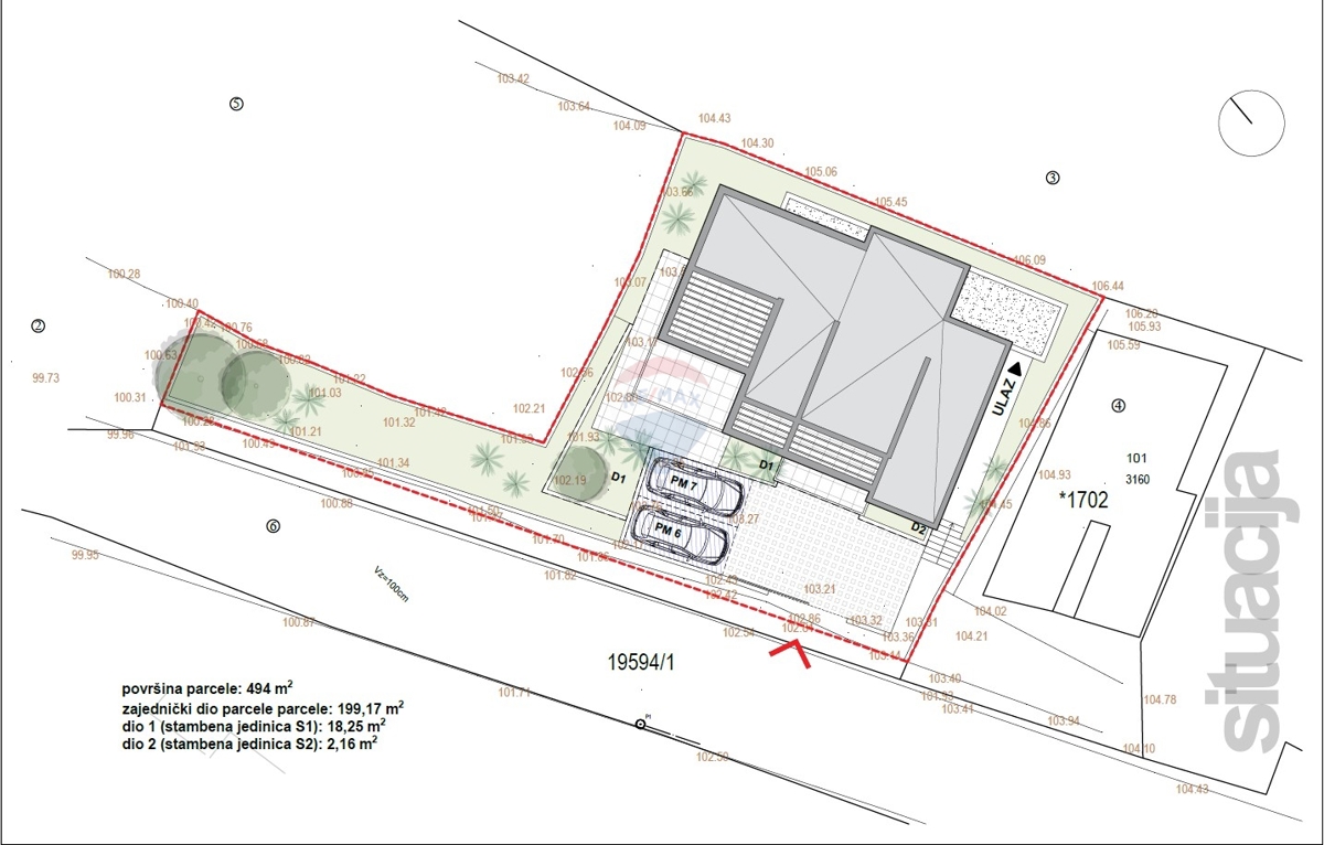
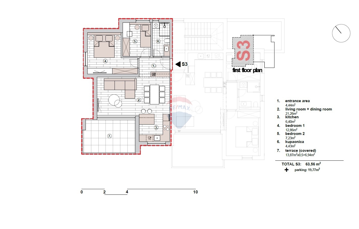
Offriamo un appartamento moderno e lussuosamente arredato, situato al 1° piano di un esclusivo edificio residenziale con un totale di 7 unità abitative. L'edificio è in costruzione in una posizione elevata e tranquilla a Primošten, esposto a sud, a pochi passi dal mare e dalla spiaggia (1.400 m). Grazie alla posizione, gli appartamenti offrono tranquillità, privacy e una splendida vista panoramica. Appartamento S3 – 1° piano, esposizione sud Superficie utile netta totale: 73.445 m² Superficie abitabile coperta: 56.62 m² Stanze: ingresso, soggiorno con cucina e sala da pranzo, due camere da letto (12.86 m² e 7.23 m²), bagno Terrazzo: 13.87 m² (calcolato 6.94 m²) Accessori: posto auto in garage 19.77 m² (calcolato 9.885 m²) Qualità costruttiva e dotazioni L'edificio è stato costruito secondo standard elevati: Costruzione: cemento armato, con facciata in lana di roccia (10 cm) Infissi esterni in alluminio: vetro a triplo strato, tapparelle elettriche, zanzariere Sicurezza: porta blindata Pavimentazione: ceramiche e parquet di alta qualità (diverse varianti disponibili per l'acquirente) Dotazioni: aria condizionata in ogni stanza, riscaldamento a pavimento in tutte le stanze con Ceramica, parquet nelle camere da letto Scadenze di costruzione Attualmente, i lavori di costruzione sono in corso. Entrata prevista: fine 2026 Agli acquirenti viene offerta l'opportunità di partecipare alla selezione delle finiture e dell'interior design secondo i propri desideri, in accordo con l'investitore. Ubicazione - Primošten Primošten è una delle più belle città della Dalmazia, situata tra Sebenico e Traù, dichiarata migliore destinazione turistica nel 2024. È nota per il suo pittoresco centro storico, la penisola, i vigneti e il mare cristallino. Le baie di Velika e Mala Raduča, così come il porto di Primošten, si distinguono per la loro eccezionale bellezza naturale. Distanze Spiaggia: 1.400 m Centro di Primošten: 1.500 m Traù: 30 km Aeroporto di Spalato: 35 km Negozio: 400 m Ristorante: 1.500 m Farmacia: 400 m Banca: 1.500 m Scuola: 500 m Questa proprietà è la scelta perfetta per chi cerca una posizione tranquilla, una costruzione di qualità e la possibilità di personalizzare gli interni: ideale per viverci o come investimento in affitto turistico. Per ulteriori informazioni e per organizzare una visita, non esitate a contattarci.
ID: 1217145