Tutti tipi
Case
Appartamenti
Terreni
Uffici
Provincia
...
Istria
Quarnaro
Spalato-Dalmazia-Sud
Ragusa
Sebenico-Dalmazia
Zara-Dalmazia-Nord
Zagabria
Bjelovarsko-bilogorska
Brodsko-posavska
Karlovac
Koprivniško-križevska
Krapinsko-zagorska
Ličko-senjska
Međimurje
Osijek-Baranja
Požeško-slavonska
Sisačko-moslavačka
Varaždinska
Virovitiško-podravska
Vukovarsko-srijemska
Zagabria-Dintorni
Comune
...
MURTER
SKRADIN
ŠIBENIK
CIVLJANE
VODICE
DRNIŠ
ROGOZNICA
UNEŠIĆ
RUŽIĆ
KNIN
PIROVAC
PRIMOŠTEN
PROMINA
TRIBUNJ
BISKUPIJA
Città
...
PRIMOŠTEN
PRIMOŠTEN BURNJI
VADALJ
VEZAC
Tipo
Tutti
Case
Appartamenti
Terreni
Uffici
Prezzo
da
a
Distanza dal mare (m)
da
a
Criterio
Più recenti
Meno recenti
Più costosi
Meno costosi
Cerca
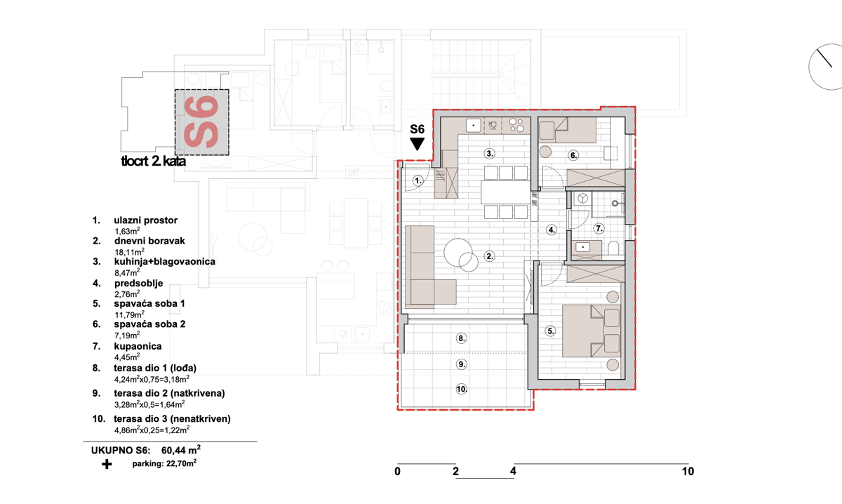
Appartamento - PRIMOŠTEN - 337.000 EUR
Previous
Next
Posizione
PRIMOŠTEN, Sebenico-Dalmazia
Prezzo €
337.000
Superficie
71 m
2
Numero di camere
3
Bagni
1
Distanza dal mare
1500 m
ID: 1206180
Invia messaggio
Nome
E-mail
Tel.
2 + 6 =
Messaggio
Invia
Annulla