Appartamento - PRIMOŠTEN - 649.000 EUR
| Posizione | PRIMOŠTEN, Sebenico-Dalmazia |
| Prezzo € | 649.000 |
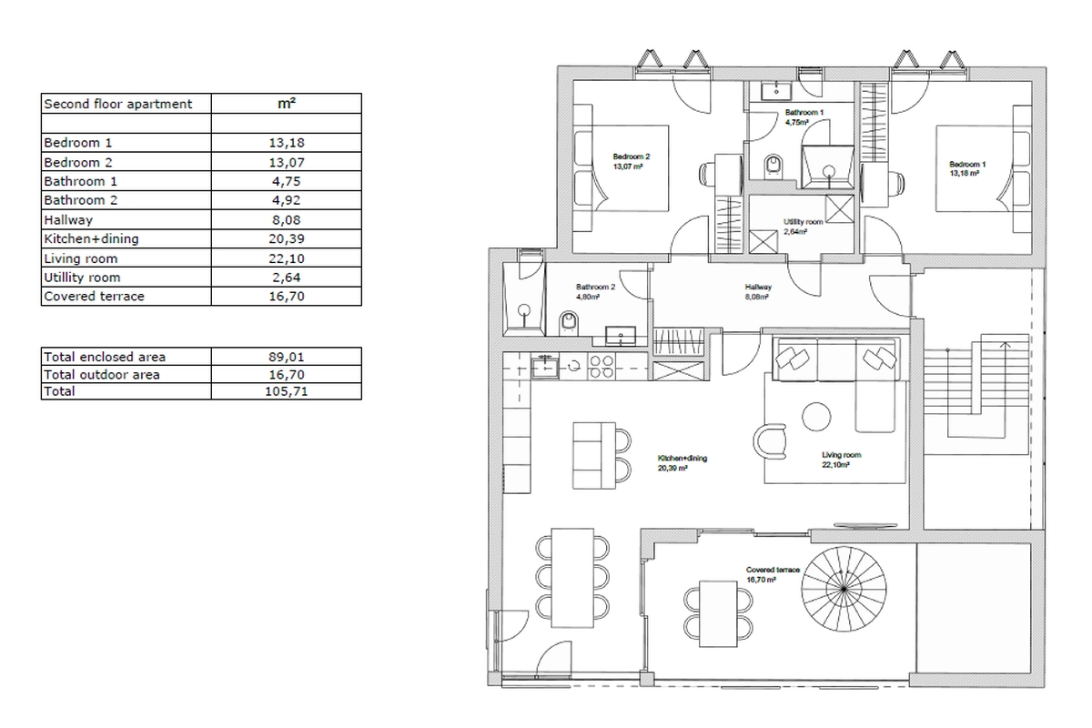
| Superficie | 93 m2 |
| Numero di camere | 2 |
| Bagni | 2 |
| Distanza dal mare | 0 m |
In una posizione privilegiata sopra Primošten, è in vendita un ampio attico in un nuovo edificio. L’appartamento, di circa 90 m², si trova al terzo piano di un piccolo edificio residenziale e, grazie alla sua posizione, gode di una vista libera sul mare. L’appartamento è composto da due camere da letto, una delle quali con bagno privato. Comprende inoltre un corridoio, un ripostiglio, un altro bagno e un open space che unisce cucina, soggiorno e sala da pranzo. Il soggiorno si apre su una terrazza coperta di quasi 17 m², dalla quale una scala a chiocciola conduce a un’ampia terrazza sul tetto di 65 m². L’appartamento dispone di un posto auto coperto. Questo appartamento è un ottimo investimento per il turismo, ma anche come rifugio per una spensierata vacanza in famiglia, dato che si trova in una posizione tranquilla e allo stesso tempo vicino a tutti i servizi principali.
ID: 1261226