Casa - PRIMOŠTEN - 1.490.000 EUR
| Posizione | PRIMOŠTEN, Sebenico-Dalmazia |
| Prezzo € | 1.490.000 |
| Superficie | 250 m2 |
| Numero di camere | 6 |
| Superficie terrestre | 480 m2 |
| Bagni | 6 |
| Distanza dal mare | 0 m |
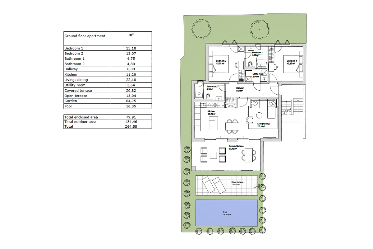
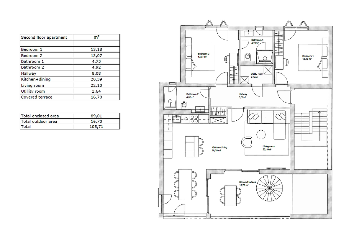
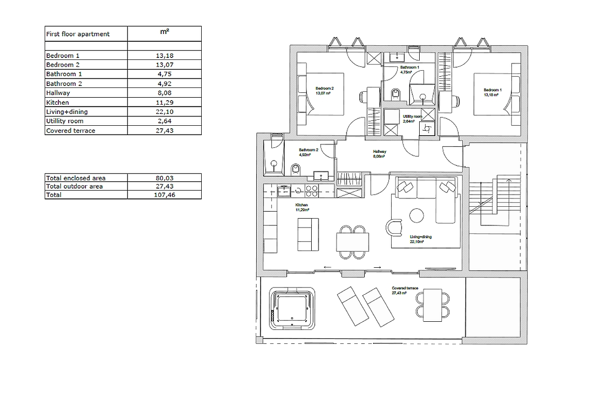
In una posizione privilegiata sopra Primošten, è in vendita una moderna villa urbana con tre appartamenti e piscina. Grazie alla sua posizione, tutti gli appartamenti offrono una magnifica vista sul mare e sulle isole. La superficie abitabile totale della casa è di poco superiore a 250 m² e si trova su un terreno di 480 m². All’interno del curato giardino, si trova un parcheggio coperto per tre auto. Gli appartamenti sono separati l’uno dall’altro, con ingressi separati collegati da una scala esterna. Tutti e tre gli appartamenti dispongono di due camere da letto, due bagni e una zona giorno open space. Il primo appartamento, situato al piano terra, ha una superficie abitabile di 80 m² e un giardino di 135 m² con balcone e terrazza solarium. L’appartamento al primo piano è progettato in modo simile. Comprende 80 m² di superficie abitabile e 27 m² di spazio esterno sotto forma di terrazza coperta. Al secondo piano si trova un attico con una superficie abitabile di 90 m² e accesso privato a una terrazza sul tetto di circa 65 m². Questa casa moderna è un ottimo investimento, data la vicinanza a tutti i servizi e la posizione che offre allo stesso tempo tranquillità e privacy. Oltre alla vendita dell’intera casa, è possibile acquistare ogni appartamento singolarmente.
ID: 1259527