Appartamento - PRIVLAKA - 309.505 EUR
| Posizione | PRIVLAKA, Zara-Dalmazia-Nord |
| Prezzo € | 309.505 |
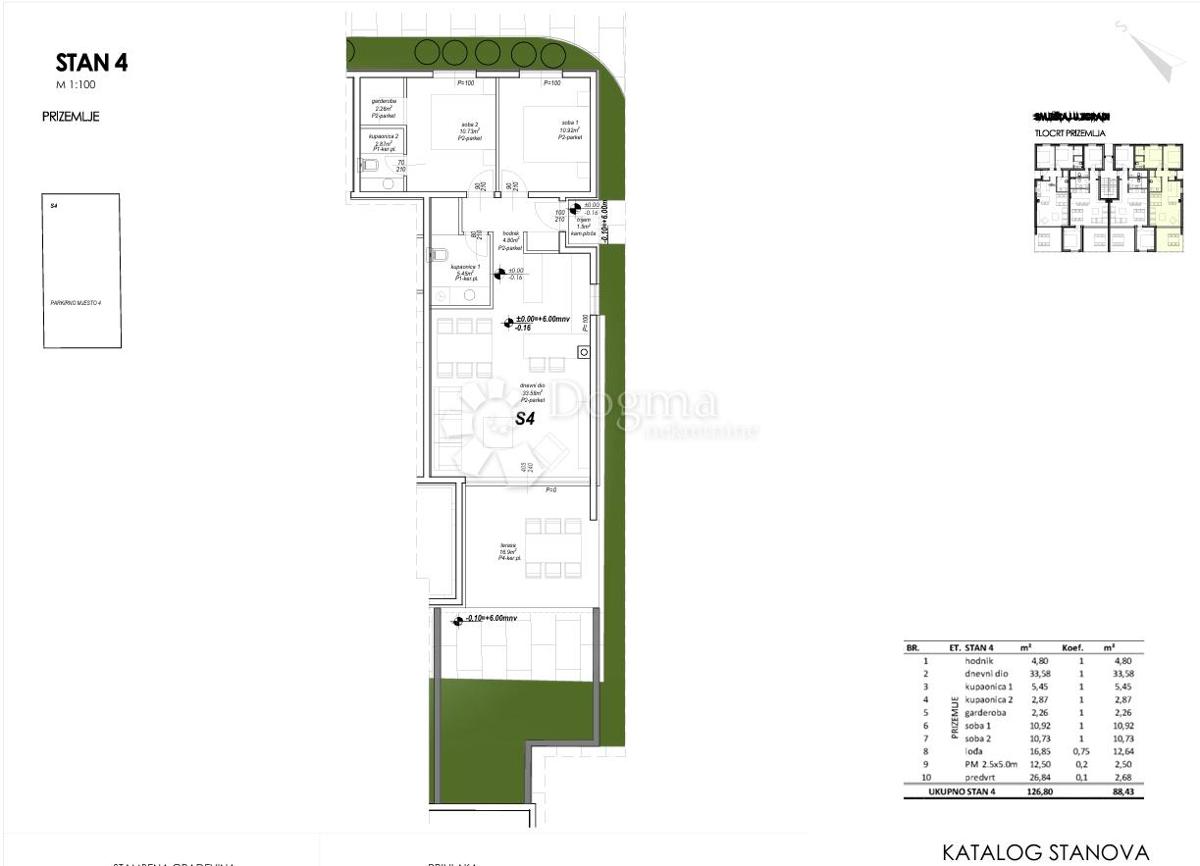
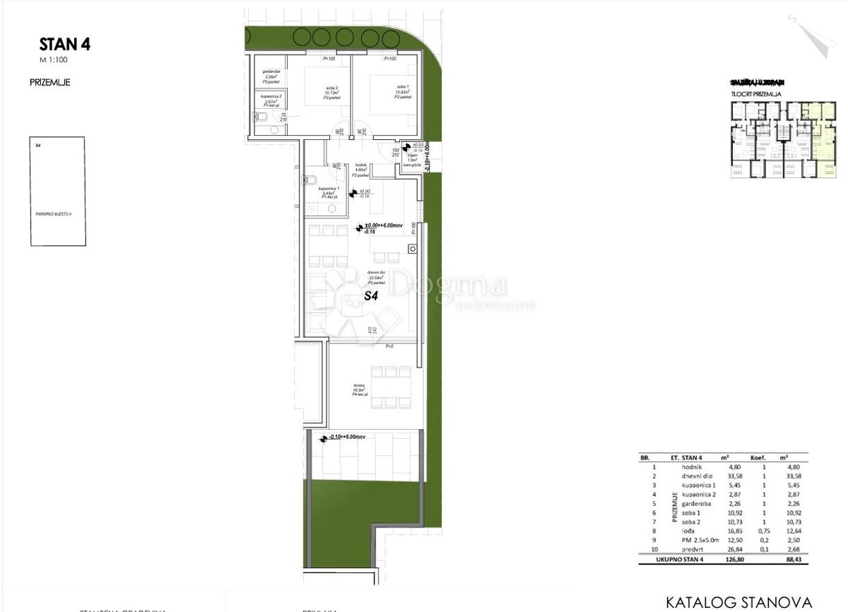
| Superficie | 88 m2 |
| Numero di camere | 3 |
| Superficie terrestre | 126 m2 |
| Bagni | 2 |
| Distanza dal mare | 120 m |
L'appartamento S4 è un appartamento al piano terra ideale per le famiglie, con due camere da letto, due bagni e una zona giorno che si apre su una loggia. La superficie netta utile di 88,43 m² offre un ottimo rapporto tra prezzo, dimensioni e vicinanza alla spiaggia. Efficienza energetica, posto auto e documentazione impeccabile. Approfittate della prima scelta.
ID: 1228122