Appartamento - PRIVLAKA - 350.315 EUR
| Posizione | PRIVLAKA, Zara-Dalmazia-Nord |
| Prezzo € | 350.315 |
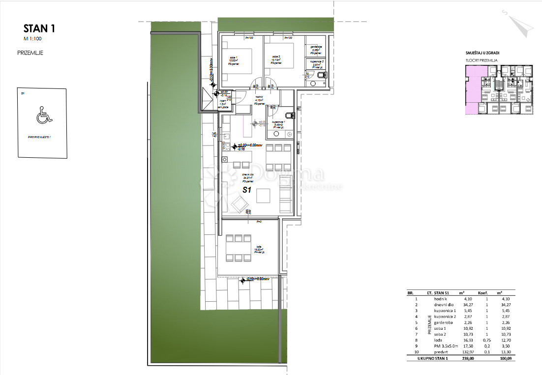
| Superficie | 100 m2 |
| Numero di camere | 3 |
| Superficie terrestre | 132 m2 |
| Bagni | 2 |
| Vicino ai trasporti | Si |
| Distanza dal mare | 120 m |
L'appartamento S1 si trova al piano terra di un nuovo edificio a Privlaka, a 120 metri dal mare. Disposizione: ampia zona giorno con accesso a una loggia, zona notte separata e due bagni. La superficie utile netta è di 100,09 m² secondo gli standard ISO, con isolamento termico integrato, serramenti di qualità e un posto auto assegnato. La microlocalizzazione è tranquilla, a 2 minuti a piedi dalla spiaggia, dai negozi e dai servizi. Immobili di questo tipo scompaiono rapidamente dal mercato; prenota un appuntamento per una visita finché l'appartamento è ancora disponibile.
ID: 1228135