Appartamento - PRIVLAKA - 350.315 EUR
| Posizione | PRIVLAKA, Zara-Dalmazia-Nord |
| Prezzo € | 350.315 |
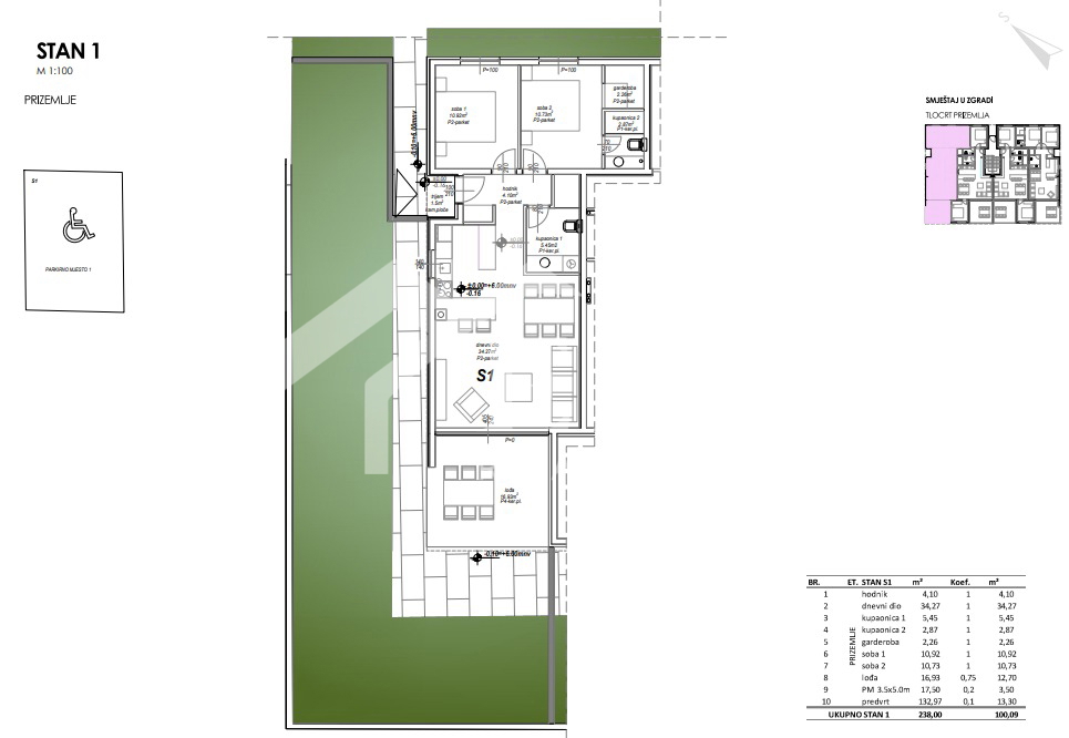
| Superficie | 100 m2 |
| Numero di camere | 3 |
| Bagni | 2 |
| Vicino alla spiaggia | Si |
| Distanza dal mare | 0 m |
In vendita ampio appartamento con due camere da letto (S1) al piano terra di una nuova costruzione a Privlaka, nelle immediate vicinanze di Zadar. La superficie totale dell’appartamento con pertinenze è di 100,09 m2. Questa proprietà è composta da un ampio soggiorno con cucina e sala da pranzo, due camere da letto, due bagni, guardaroba e loggia. L’appartamento include inoltre un posto auto e un giardino di 130 m2. L’appartamento si trova in un edificio con 10 unità abitative, situato in seconda fila dal mare. L’accesso all’edificio è privato, recintato e protetto da un sistema di sicurezza. Gli appartamenti al piano terra di questo edificio sono adattati per persone con disabilità. La proprietà è stata costruita e arredata con materiali di alta qualità, e per il massimo comfort ogni unità abitativa sarà dotata di riscaldamento a pavimento nel soggiorno, cucina e bagni, climatizzatori in tutte le stanze, parquet e ceramiche di alta qualità e infissi in PVC della massima qualità. La fine prevista dei lavori è la primavera del 2026. Il compratore all’acquisto di questa proprietà NON PAGA l’imposta sulle transazioni immobiliari! Per ulteriori informazioni o per visitare la proprietà, non esitate a contattarci. Emil Perović +385 98 63 36 17 info@epic-nekretnine.com EPIC NEKRETNINE d.o.o. Polačišće 4, Zadar
ID: 1258950