Appartamento - PRIVLAKA - 488.040 EUR
| Posizione | PRIVLAKA, Zara-Dalmazia-Nord |
| Prezzo € | 488.040 |
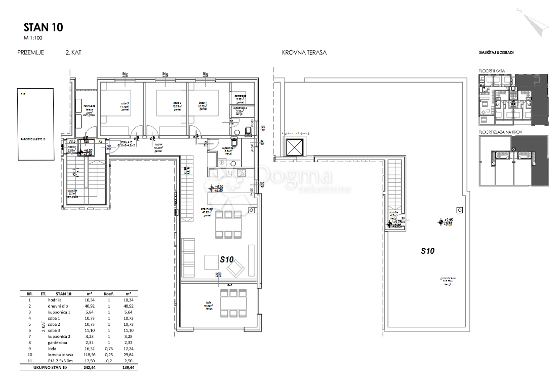
| Superficie | 139 m2 |
| Numero di camere | 4 |
| Bagni | 2 |
| Distanza dal mare | 120 m |
Attico in vendita in un nuovo edificio a Privlaka, a soli 120 metri dal mare. Si trova al secondo piano di un edificio moderno e occupa l'intero piano, con una superficie utile totale di 139 m². L'appartamento è composto da un ampio soggiorno con cucina e sala da pranzo, tre camere da letto, due bagni, una cabina armadio e una loggia. La particolarità di questo appartamento è l'ampia terrazza sul tetto di 118 m² con la possibilità di creare una zona soggiorno, una vasca idromassaggio e una cucina estiva con vista mare. L'edificio è stato costruito secondo elevati standard di efficienza energetica e l'appartamento dispone anche di un parcheggio privato. La posizione è tranquilla, vicino alla spiaggia e a tutti i servizi necessari.
ID: 1228690