Appartamento - PULA - 199.000 EUR
| Posizione | PULA, Istria |
| Prezzo € | 199.000 |
| Superficie | 60 m2 |
| Numero di camere | 2 |
| Bagni | 1 |
| Vicino ai trasporti | Si |
| Distanza dal mare | 0 m |
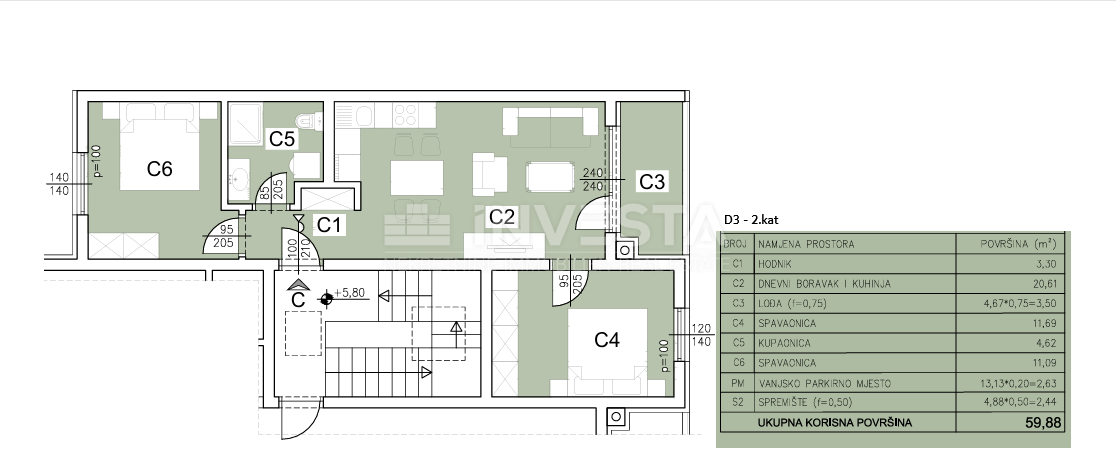
In una posizione attraente e tranquilla nel quartiere Šijana di Pola, sono disponibili appartamenti in costruzione al secondo piano di un edificio progettato in stile moderno all'interno di un nuovo complesso residenziale. Il complesso è composto da sei edifici più piccoli con un totale di 24 appartamenti, garantendo un quartiere piacevole e discreto e un alto livello di privacy. Il completamento è previsto per la primavera del 2027 e il progetto viene realizzato con tutta la documentazione necessaria e la certificazione energetica. Sono disponibili due appartamenti al secondo piano dello stesso edificio, ciascuno con una superficie abitabile di 55 m² e al medesimo prezzo di vendita. Gli appartamenti sono venduti separatamente, ciascuno al prezzo indicato in questo annuncio, e differiscono per layout e pertinenze al piano terra, permettendo agli acquirenti di scegliere l'opzione più adatta alle loro esigenze. L'appartamento E3 ha una superficie totale di 64,92 m². È composto da ingresso, soggiorno con cucina e sala da pranzo in un concetto open space, due camere da letto, bagno e loggia. Al piano terra dispone di due posti auto esterni e di un locale di deposito privato. L'appartamento E4 ha una superficie totale di 60,12 m². Comprende anche ingresso, soggiorno con cucina e sala da pranzo, due camere da letto, bagno e loggia. Al piano terra dispone di un posto auto esterno e di un locale di deposito privato. È disponibile anche un ulteriore appartamento nell'edificio adiacente. L'appartamento F2 si trova al primo piano dell'edificio adiacente e ha una superficie totale di 60,05 m², con una superficie abitabile di 54,95 m². Comprende ingresso, soggiorno, sala da pranzo e cucina in open space con accesso a una terrazza coperta, bagno e due camere da letto. Al piano terra dispone di un posto auto esterno e di un locale di deposito privato. Il prezzo dell'appartamento F2 è lo stesso degli altri appartamenti elencati e viene venduto separatamente. La qualità della costruzione e delle finiture è uno dei principali punti di forza di questo progetto. È prevista una facciata con isolamento termico ad alta efficienza di 10 cm, porte d'ingresso antieffrazione e infissi esterni in PVC con vetro doppio IZO e persiane. Gli appartamenti saranno rifiniti con ceramiche moderne di alta qualità, mentre logge e terrazze avranno piastrelle antiscivolo. La temperatura interna confortevole è garantita tutto l'anno con aria condizionata, con riscaldamento elettrico a pavimento aggiuntivo nel soggiorno, cucina e bagno. I bagni sono dotati di radiatori elettrici per asciugamani con termostato. La posizione a Šijana offre una combinazione ideale di vita tranquilla e vicinanza a tutti i servizi essenziali, come scuole, negozi, trasporti pubblici e altre necessità quotidiane. L'acquisto è possibile tramite mutuo in collaborazione con una banca partner del costruttore o tramite pagamento rateale durante le fasi di costruzione. Il trasferimento di proprietà avviene dopo il rilascio del permesso di utilizzo e della registrazione della proprietà, e gli acquirenti sono esentati dalla tassa sulle transazioni immobiliari del 3%. Tutti gli appartamenti sono venduti separatamente al prezzo indicato in questo annuncio, offrendo agli acquirenti una scelta chiara e trasparente tra diverse configurazioni all'interno dello stesso complesso residenziale. Per ulteriori informazioni o per fissare una visita, contattateci con fiducia.
ID: 1261921