Appartamento - PULA - 221.000 EUR
| Posizione | PULA, Istria |
| Prezzo € | 221.000 |
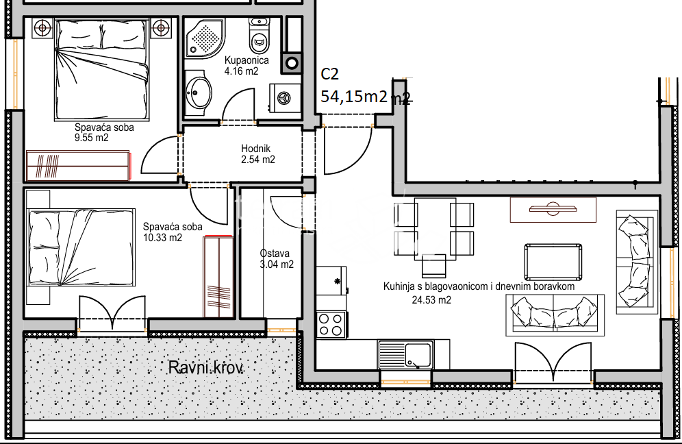
| Superficie | 54 m2 |
| Numero di camere | 3 |
| Bagni | 1 |
| Vicino ai trasporti | Si |
| Distanza dal mare | 0 m |
In vendita un appartamento attraente di 54,15 m² situato al primo piano di un edificio di cinque piani, nel cuore della città di Pola. Questo appartamento di 2,5 vani (2S+DB) si distingue per una posizione estremamente tranquilla e soleggiata nel centro del quartiere, rendendolo una scelta ideale per una vita cittadina confortevole o per investimento. L'orientamento dell'appartamento è a est, garantendo abbondante luce naturale durante tutta la giornata. L'appartamento dispone di due camere da letto e un soggiorno, mentre un valore aggiunto è rappresentato dalla loggia e dal ripostiglio/deposito. L'accesso all'appartamento è facilitato da un ascensore ed è adatto anche a persone con disabilità. La porta d'ingresso blindata offre ulteriore sicurezza, mentre per l'intrattenimento e l'informazione è disponibile la TV satellitare. Il riscaldamento è fornito tramite riscaldamento a pavimento, energia elettrica e climatizzatore, che serve anche per il raffrescamento degli ambienti. L'appartamento include anche un parcheggio coperto, una vera rarità nel centro città. L'area esterna curata contribuisce ulteriormente alla qualità della vita in questo immobile. La posizione nel centro di Pola consente un rapido accesso a tutti i servizi necessari per la vita quotidiana, inclusi negozi, ristoranti, servizi culturali e ricreativi. Per ulteriori informazioni e per fissare una visita, non esitate a contattarci. **Gli acquirenti interessati possono ottenere le informazioni necessarie sull'immobile pubblicizzato e visionarlo tramite la nostra agenzia solo previa sottoscrizione di un contratto di mediazione immobiliare o di un Documento di Visione Immobiliare.** **L'acquirente paga una commissione di agenzia del 3% + IVA.**
ID: 1185301