Appartamento - PULA - 250.000 EUR
| Posizione | PULA, Istria |
| Prezzo € | 250.000 |
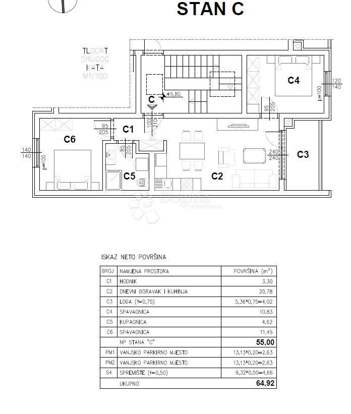
| Superficie | 55 m2 |
| Numero di camere | 3 |
| Bagni | 1 |
| Vicino ai trasporti | Si |
| Distanza dal mare | 2500 m |
Ubicazione e introduzione In una posizione attraente, all'ingresso di Pola, sorge il nuovo progetto "Šijana Gate Residence", che prevede la costruzione di un moderno complesso residenziale di sei edifici per un totale di 24 appartamenti. Il complesso, completamente privato, sorgerà nel popolare quartiere cittadino "Šijana", nelle immediate vicinanze di tutti i servizi principali (scuole, asili, centri commerciali, trasporti pubblici). Il completamento dei lavori è previsto per la primavera del 2027, con l'ottenimento di tutti i permessi necessari e la certificazione energetica. Disposizione e superficie: il progetto prevede quattro appartamenti per edificio con una superficie compresa tra 60 m² e 88 m², due al primo piano e due al secondo piano. Con una disposizione efficiente, ogni appartamento avrà due camere da letto, un'ampia cucina con soggiorno, un bagno e una loggia. Il progetto include anche un garage privato o un posto auto esterno e un ripostiglio per ogni unità abitativa al piano terra dell'edificio. Materiali e dotazioni: Gli interni degli edifici residenziali soddisferanno elevati standard qualitativi (classe energetica A/A+): facciata termoisolante (ETICS) e isolamento termico ad alta efficienza di 10 cm di spessore (lana minerale/EPS), porte d'ingresso antieffrazione, serramenti esterni in PVC con vetro IZO a doppio strato riempito con argon e tapparelle. Tutti gli ambienti degli appartamenti saranno dotati di ceramiche di alta qualità dal design moderno, accuratamente selezionate per resistenza ed estetica. Sulle logge saranno utilizzate ceramiche antiscivolo per una maggiore sicurezza e comfort del soggiorno. Riscaldamento e raffrescamento di ogni unità tramite aria condizionata e riscaldamento a pavimento elettrico in bagno, soggiorno e cucina. I bagni sono inoltre dotati di radiatori elettrici (asciugatrici) con termostato. Esterni: I dintorni dell'edificio includono aree verdi con piante autoctone istriane, un prato con irrigazione automatica, sentieri e vialetti pavimentati, una siepe per la privacy, illuminazione a LED con sensore di movimento e un sistema di drenaggio sostenibile tramite scarichi sotterranei e un pozzo di assorbimento. Posizione Ottimi collegamenti di trasporto - vicinanza alla strada principale della città (Cesta Šijana), rapido accesso al centro di Pola, alla stazione degli autobus e all'uscita per l'Y istriana. Vicino ai centri commerciali - a pochi minuti a piedi da Lidl, Plodin, Kaufland, Pevex, Bauhaus e altri negozi - ideale per la vita di tutti i giorni. Verde e svago - la distanza dal parco-foresta di Šijana (Carska šuma) è di soli pochi minuti - perfetto per passeggiate, corsa, ciclismo e attività per famiglie nella natura. Zona per famiglie - nelle vicinanze si trovano asili nido, la scuola elementare di Šijana, impianti sportivi e parchi giochi per bambini. Area urbana in fase di sviluppo - Šijana si sta sviluppando come un moderno quartiere cittadino con nuovi edifici, motivo per cui il valore degli immobili in questa zona è in continuo aumento. Posizione tranquilla e sicura - l'insediamento ha un carattere residenziale, lontano dal rumore della città, ma comunque molto vicino a tutti i servizi importanti. Per ulteriori informazioni, non esitate a contattarci con fiducia. Gabrijela Lovrinović Agente autorizzato 097 7617 229 gabrijela.lovrinovic@dogma-nekretnine.com Filip Crnjac Agente autorizzato 091 6001 216
ID: 1231771