Appartamento - PULA - 258.500 EUR
| Posizione | PULA, Istria |
| Prezzo € | 258.500 |
| Superficie | 87 m2 |
| Numero di camere | 2 |
| Bagni | 2 |
| Vicino ai trasporti | Si |
| Distanza dal mare | 0 m |
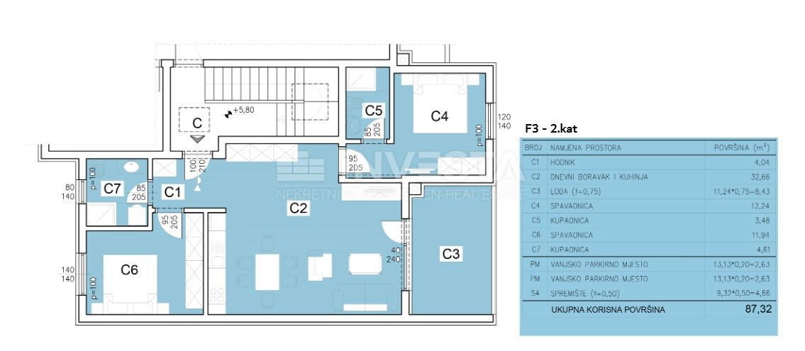
Appartamento in vendita in costruzione a Siana, Pola Situato in una zona tranquilla e attraente del quartiere Siana di Pola, questo appartamento in costruzione fa parte di un nuovo complesso residenziale moderno. Il complesso è composto da sei edifici più piccoli con un totale di 24 appartamenti, garantendo un vicinato piacevole e riservato. Il completamento è previsto per la primavera 2027, con tutta la documentazione necessaria e certificazione energetica. L'appartamento F1 si trova al primo piano ed è progettato per offrire massimo comfort e funzionalità. Superficie totale: 87,89 m², di cui 77,40 m² abitabili. Composto da ingresso, soggiorno spazioso con cucina a vista e zona pranzo, loggia, due camere da letto e due bagni. Al piano terra si trova un ripostiglio privato e l'appartamento dispone di due posti auto esterni. La qualità costruttiva è uno dei principali punti di forza. Gli edifici avranno facciata con isolamento termico di 10 cm, porta d’ingresso antieffrazione e infissi in PVC con vetro doppio IZO e persiane. Gli interni saranno arredati con ceramica moderna di alta qualità, le logge con piastrelle antiscivolo. La temperatura confortevole è garantita da condizionamento e riscaldamento a pavimento elettrico in soggiorno, cucina e bagni. I bagni sono dotati di termosifoni elettrici asciugatori con termostato. Siana offre equilibrio tra vita tranquilla e vicinanza a scuole, negozi e trasporti pubblici. L'acquisto è possibile con mutuo o pagamento a rate durante la costruzione. Il trasferimento della proprietà avviene dopo il permesso di abitabilità e frazionamento, senza tassa di trasferimento del 3%. L'appartamento F3 – stesso layout, leggera differenza di metratura – è disponibile al secondo piano dello stesso edificio allo stesso prezzo. Per informazioni o visite, contattateci con fiducia.
ID: 1261920