Terreno - PULA - 124.500 EUR
| Posizione | PULA, Istria |
| Prezzo € | 124.500 |
| Superficie | 541 m2 |
| Distanza dal mare | 0 m |
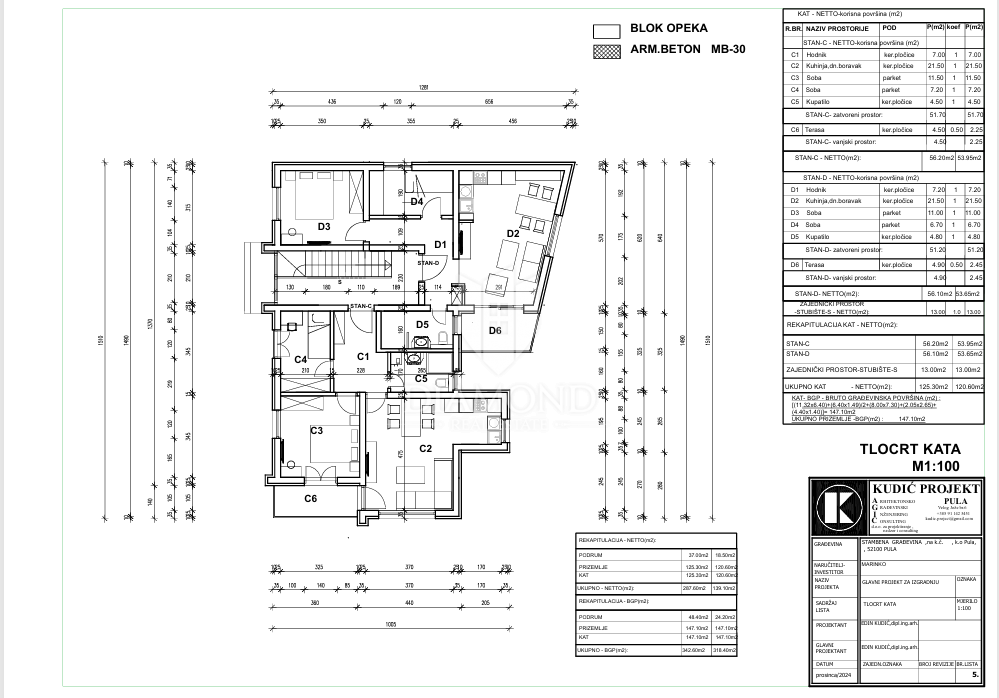
Pula, Valdebek progetto abitativo. Il terreno ha forma regolare e dispone di accesso diretto con tutte le infrastrutture principali – elettricità, acqua e fognatura – già disponibili nelle immediate vicinanze, rendendo possibile l'inizio rapido della costruzione. Il terreno viene venduto con un progetto preliminare per un edificio residenziale composto da quattro unità abitative. Il progetto è moderno e ben studiato, con appartamenti spaziosi e funzionali, pensati per garantire comfort, privacy e ottimizzazione dello spazio. È una proposta ideale per investitori alla ricerca di un’opportunità chiavi in mano. La posizione garantisce tranquillità, pur restando vicina a tutti i servizi essenziali – scuole, negozi, asili e trasporti pubblici. Il mare, le spiagge e il centro storico di Pola si trovano a pochi minuti in auto. La proprietà è regolarmente intestata 1/1, senza vincoli e con documentazione tecnica pronta, rendendo semplice e veloce la realizzazione del progetto. Un’ottima opportunità per investire nell’edilizia residenziale in una delle zone più richieste di Pola. Per ulteriori dettagli, documentazione o una visita sul posto, non esitate a contattarci.
ID: 1194176