Casa - RABAC - 1.200.000 EUR
| Posizione | RABAC, LABIN, Istria | 
| Prezzo € | 1.200.000 | 
| Superficie | 465 m2 | 
| Numero di camere | 10 | 
| Superficie terrestre | 800 m2 | 
| Bagni | 4 | 
| Vicino ai trasporti | Si | 
| Distanza dal mare | 90 m | 
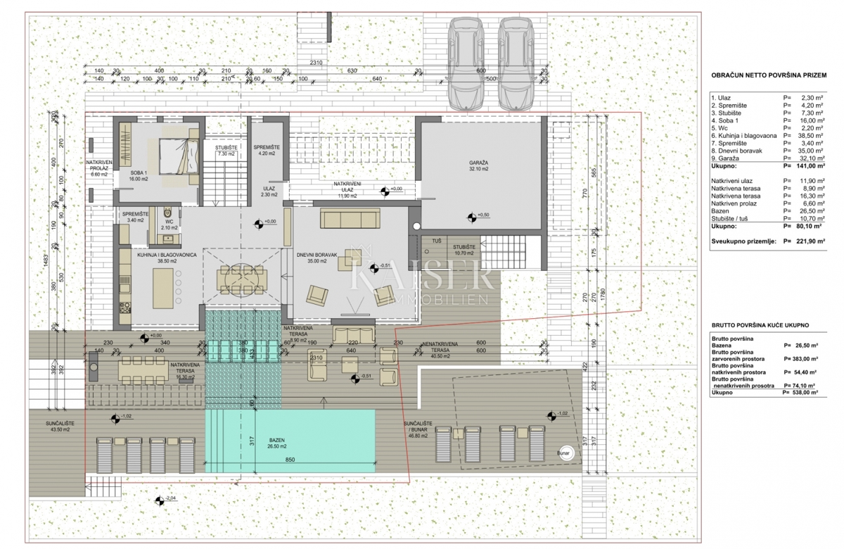
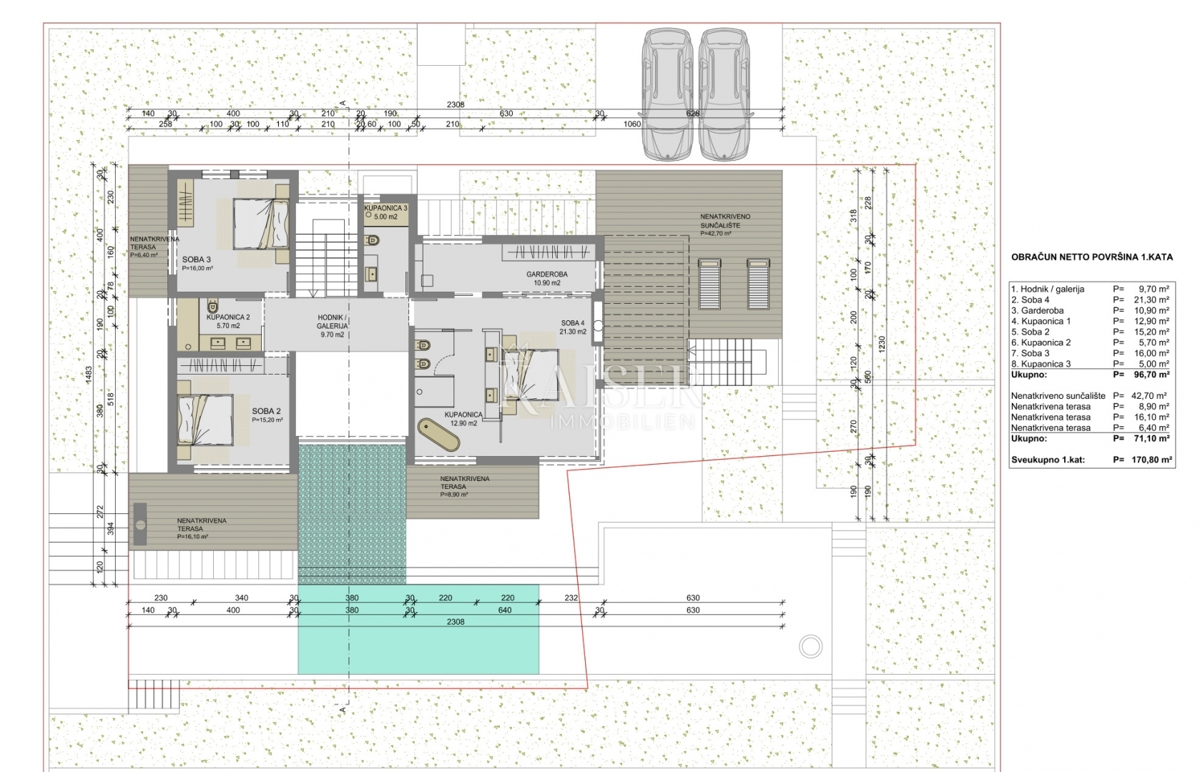
Kaiser Immobilien presenta un'opportunità unica per acquistare una villa sul mare. La villa si trova in una posizione eccellente, a soli 90 metri dal mare e a pochi minuti di auto dal centro di Albona. L'immobile è costituito da 465 m2 di superficie abitabile suddivisi in seminterrato, piano terra e primo piano. Il giardino è di 800 m2 ed è sfruttato per garantire la massima privacy. Il piano terra offre un garage per due auto. La villa è composta da 180 m2 di superficie abitabile al piano terra con terrazze coperte. Lo spazio è destinato a soggiorno con zona pranzo e cucina e una camera da letto con bagno. Pareti in vetro si estendono lungo entrambi i piani, regalando splendide viste sul mare e sulla natura della regione. Gli alti soffitti e una galleria nel soggiorno trasmetteranno al nuovo proprietario una sensazione di lusso e spaziosità. Il piano terra è orientato verso il mare e lo spazio interno è orientato verso la zona solarium della piscina e le terrazze coperte. Il giardino offre spazio a sufficienza per soddisfare diversi desideri ed esigenze personali. Al piano superiore ci sono tre camere da letto con bagno privato e una lavanderia. La vista dall'ingresso si estende fino al mare attraverso la galleria della villa, creando un'atmosfera unica. Tutte e tre le camere dispongono di terrazze private con vista sul mare. Nel seminterrato si trovano tre locali destinati ad uso personale, concepiti concettualmente come cantina con sala biliardo e palestra con area spa. Offre anche spazio per una lavanderia aggiuntiva. È dotato di finestre in alluminio a tre strati con tapparelle elettriche antieffrazione. Il tetto della casa è piatto e completamente utilizzabile, il che consente l'installazione di collettori solari. Dispone di un camino situato nel soggiorno e nella camera da letto principale. L'immobile rappresenta un'opportunità unica grazie alla sua posizione insostituibile. La sua penisola è diventata un'area protetta in cui non sono consentite ulteriori costruzioni, offrendo quindi una rara opportunità di completare una splendida villa. La zona è nota per la sua bellezza naturale e il mare cristallino, la natura incontaminata della zona e la vicinanza a tutti i servizi cittadini rendono questa proprietà una scelta perfetta. La villa è in vendita nella fase ROH-BAU. Possibilità di ultimare i lavori con lo stesso appaltatore della fase iniziale. Per ulteriori informazioni, contattare l'agente. Ana Beović ana@kaiser-immobilien.hr
ID: 1174824