Casa - RAKALJ - 650.000 EUR
| Posizione | RAKALJ, MARČANA, Istria |
| Prezzo € | 650.000 |
| Superficie | 185 m2 |
| Numero di camere | 4 |
| Superficie terrestre | 972 m2 |
| Bagni | 3 |
| Distanza dal mare | 0 m |
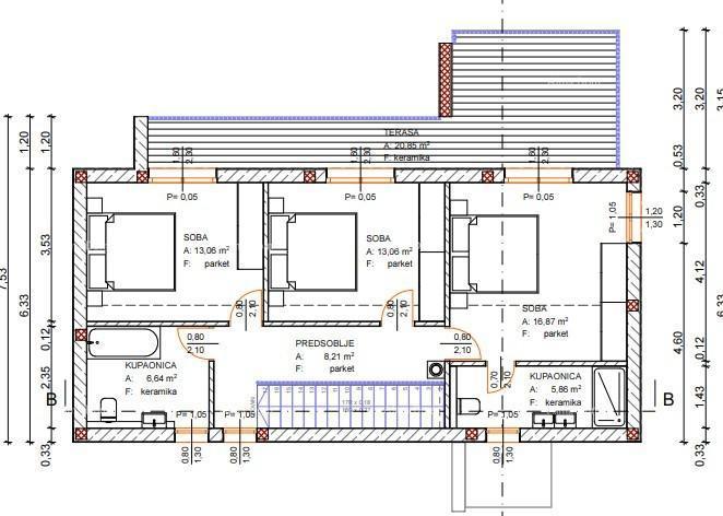
Vendiamo una bella casa moderna con piscina vicino al centro di Rakalj. Questa bellissima casa, con una superficie di 185 m², si trova a soli 400 m dal centro. Si compone di ingresso, cucina, sala da pranzo, soggiorno, una camera da letto, un bagno e una stanza aggiuntiva/lavanderia. Dal soggiorno si accede a un’ampia terrazza con cucina estiva. Il primo piano comprende un disimpegno, tre camere da letto, due bagni e una grande terrazza accessibile da tutte le camere. La casa dispone di una piscina e posti auto sulla proprietà. La casa sarà dotata di pannelli solari, camino, riscaldamento a pavimento elettrico con Wi-Fi, piastrelle al piano terra e parquet al primo piano. Per ulteriori informazioni, contattare: Azra +385 91 611 5706 +385 98 420 885 azra@almadominvest.com
ID: 1280591