Terreno - RAŽANJ - 170.000 EUR
| Posizione | RAŽANJ, ROGOZNICA, Sebenico-Dalmazia |
| Prezzo € | 170.000 |
| Superficie | 485 m2 |
| Distanza dal mare | 80 m |
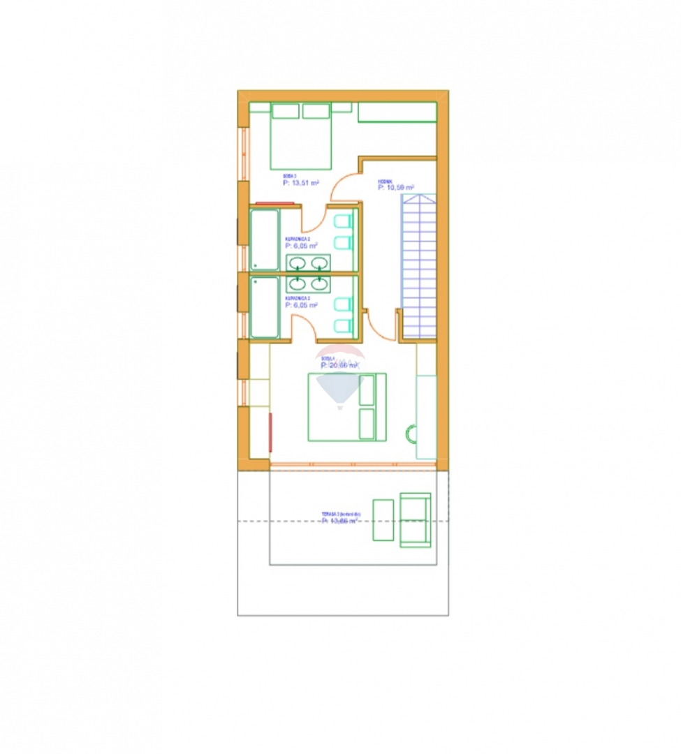
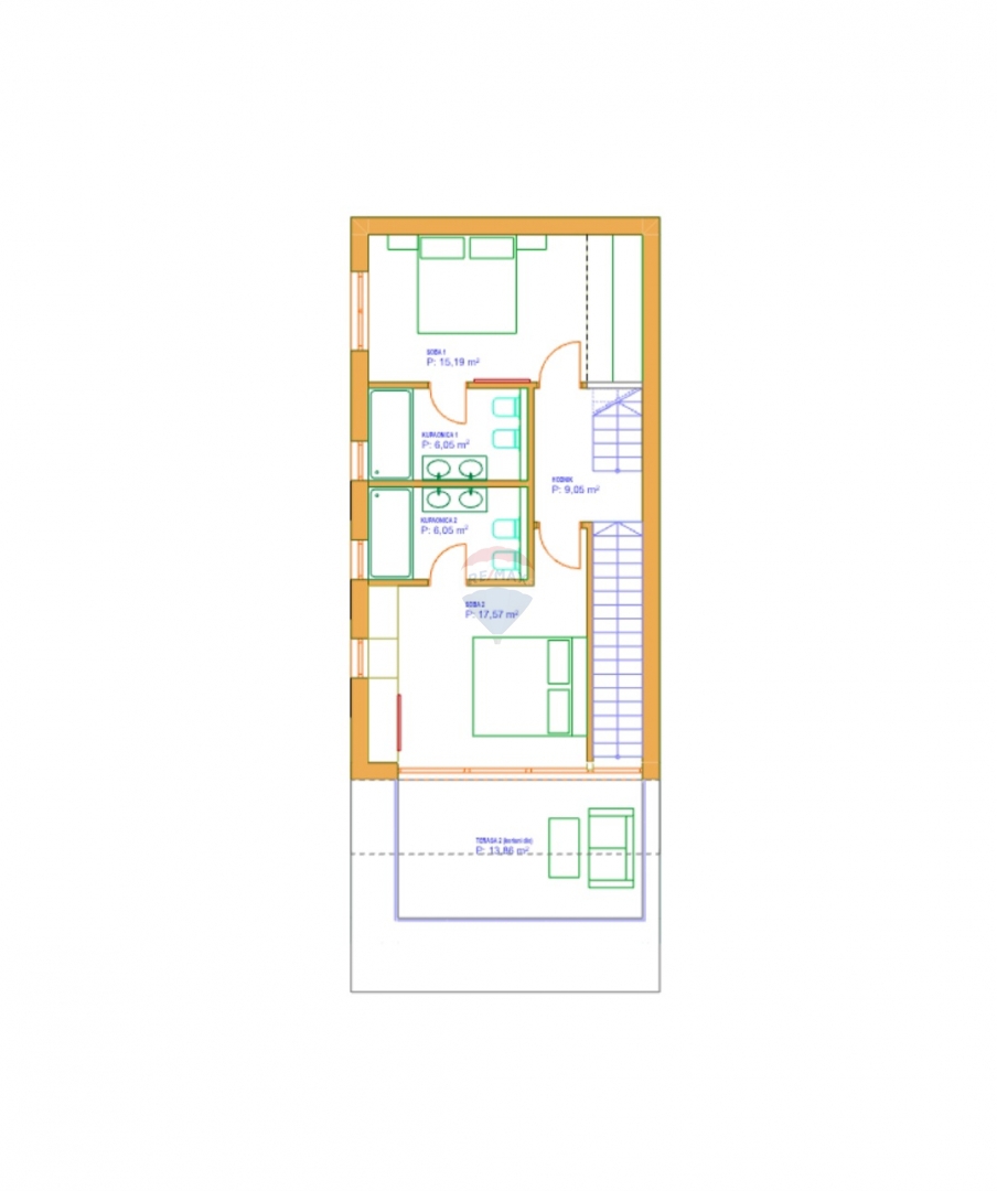
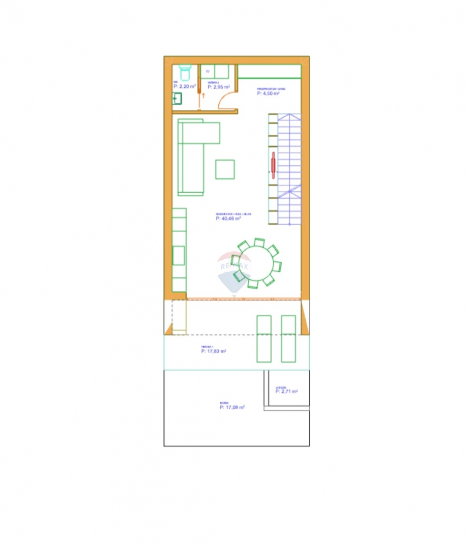
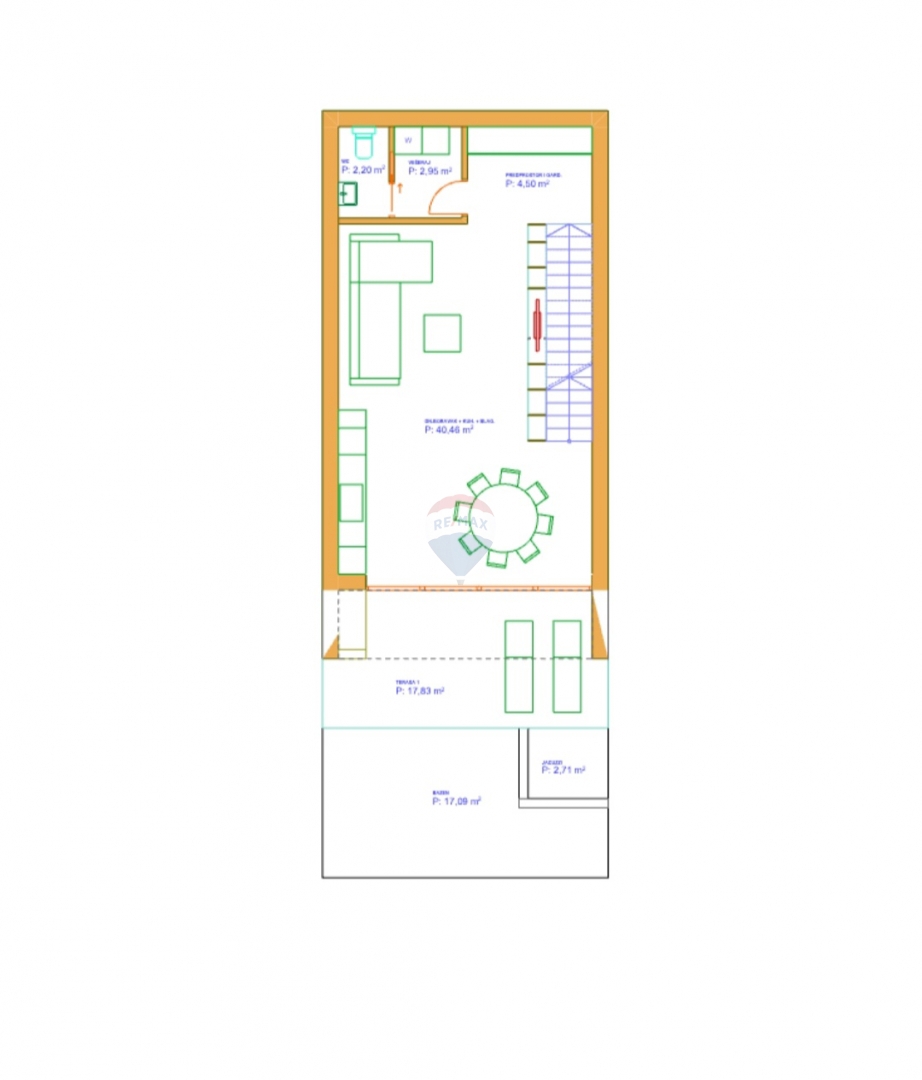
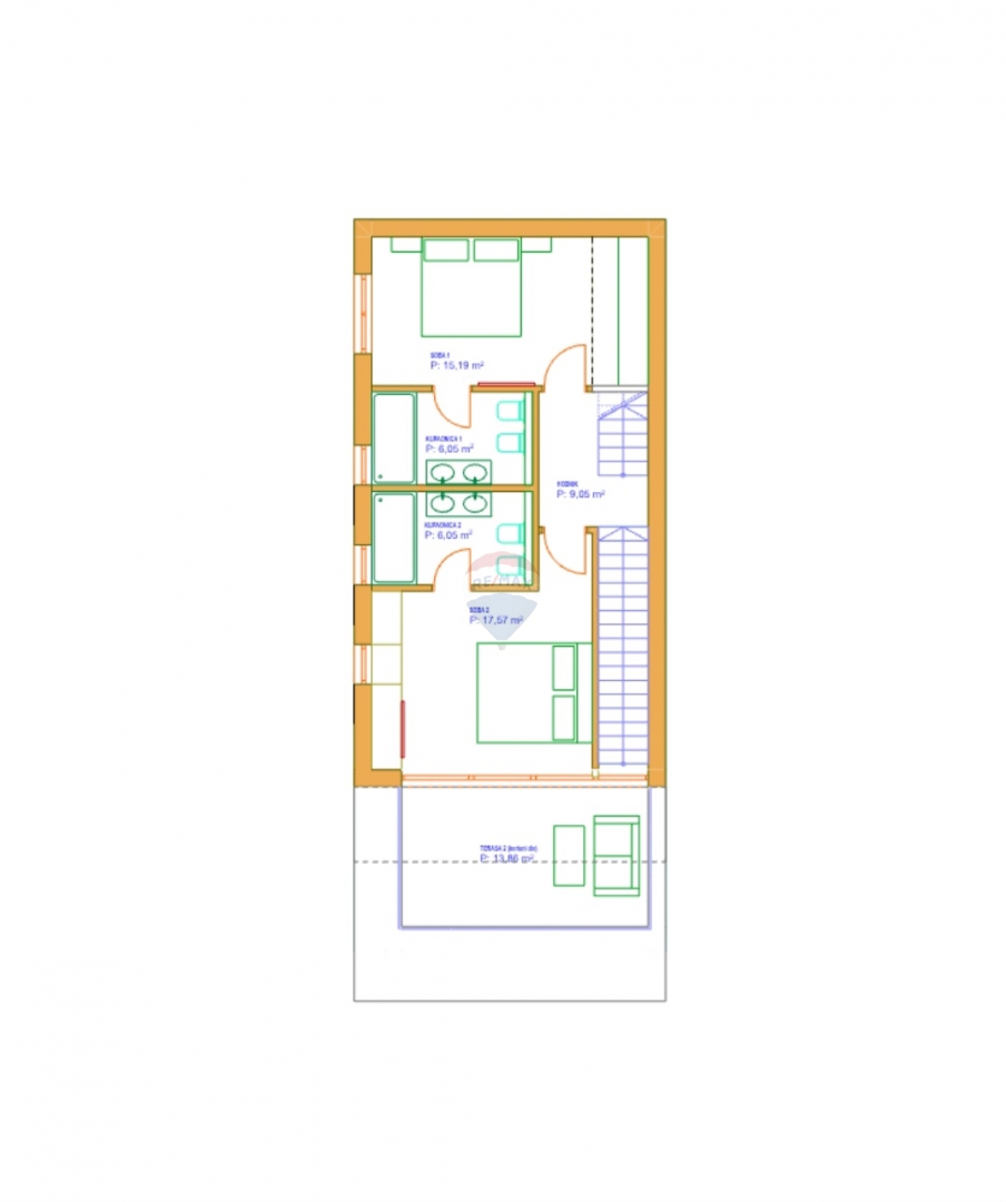
Terreno edificabile con permesso di costruzione per una casa - Kalebova Luka, Ražanj In vendita un terreno edificabile di 485,77 m², situato nella tranquilla baia di Kalebova Luka, nella città di Ražanj, non lontano da Rogoznica. Il terreno è di forma rettangolare, di dimensioni regolari, e tutte le infrastrutture necessarie si trovano nelle immediate vicinanze. Per il terreno è stato rilasciato un permesso di costruzione per la costruzione di una casa unifamiliare con una superficie netta utile di 215 m², che consente al futuro proprietario di iniziare rapidamente i lavori senza ulteriori procedure amministrative. Kalebova Luka è un piccolo e pittoresco villaggio turistico noto per la sua pace, la tranquillità e la natura incontaminata. Il mare cristallino, le calette nascoste e l'atmosfera rilassante rendono questa zona un luogo ideale per una vacanza o per una vita lontana dalla folla cittadina. Questa proprietà, a soli 80 metri dal mare, offre un'eccellente opportunità per un investimento o per costruire la propria casa vacanze in una delle località più belle della Dalmazia centrale.
ID: 1231995