Appartamento - RIJEKA - 360.000 EUR
| Posizione | RIJEKA, Quarnaro |
| Prezzo € | 360.000 |
| Superficie | 40 m2 |
| Numero di camere | 2 |
| Bagni | 1 |
| Vicino ai trasporti | Si |
| Distanza dal mare | 500 m |
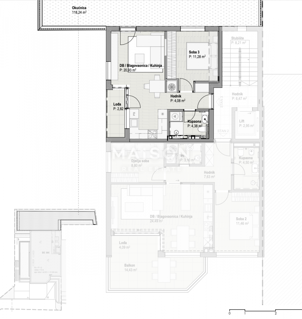
Bilocale in un nuovo edificio di lusso con loggia, ripostiglio e posto auto Nella prestigiosa zona di Bivio a Fiume, a pochi minuti a piedi dal mare, è in vendita questo moderno bilocale situato al primo piano di una nuova costruzione di alta qualità. Una soluzione ideale per chi cerca una casa pratica, elegante ed energeticamente efficiente in una posizione eccezionale. L’appartamento si trova in un edificio residenziale contemporaneo dotato di ascensore, sistemi energetici avanzati, garage interrato e predisposizione per la ricarica di veicoli elettrici. Bivio è noto per il suo ambiente tranquillo, l’ottimo collegamento e la vista panoramica sul mare. Nel raggio di 2 km si trovano asili, scuole, strutture sportive e negozi — tutto ciò che serve per una vita quotidiana confortevole. STRUTTURA DELL’APPARTAMENTO – 40,67 m² di superficie interna L’appartamento è progettato per sfruttare al massimo ogni metro quadrato: Soggiorno con cucina e zona pranzo – 20,93 m² Camera da letto – 11,28 m² Bagno – 4,38 m² Disimpegno – 4,08 m² Spazi aggiuntivi: Loggia – 3,76 m² (calcolati 2,82 m²) Ripostiglio privato – 3,10 m² Giardino – 118,24 m² (calcolati 11,82 m²) Posto auto – 14,87 m² (calcolati 3,72 m²) SUPERFICIE COMPLESSIVA CALCOLATA: 58,63 m² CARATTERISTICHE DELL’EDIFICIO Il nuovo complesso soddisfa i più alti standard costruttivi: Riscaldamento a pavimento tramite pompa di calore aria-acqua Sistema di raffreddamento con fan-coil in soggiorno e camera Serramenti in alluminio Schüco con tapparelle/veneziane elettriche Ceramiche italiane di alta qualità nel bagno e nella loggia Parquet di pregio nelle zone giorno e notte Parapetti in vetro sulla loggia Ascensore e aree comuni curate Garage interrato predisposto per colonnine di ricarica EV Un grande vantaggio di questa unità è il giardino privato, perfetto per animali domestici, area verde, barbecue o relax all’aperto — una vera rarità nelle nuove costruzioni moderne. Questo appartamento a Bivio offre il perfetto equilibrio tra qualità, funzionalità e una posizione residenziale esclusiva. Con standard costruttivi moderni, giardino privato, ripostiglio e posto auto, rappresenta un’opportunità di grande valore sul mercato. Per maggiori informazioni o per organizzare una visita, non esitate a contattarci.
ID: 1237526