Casa - ROVINJ - 265.000 EUR
| Posizione | ROVINJ, Istria |
| Prezzo € | 265.000 |
| Superficie | 51 m2 |
| Numero di camere | 4 |
| Bagni | 1 |
| Distanza dal mare | 0 m |
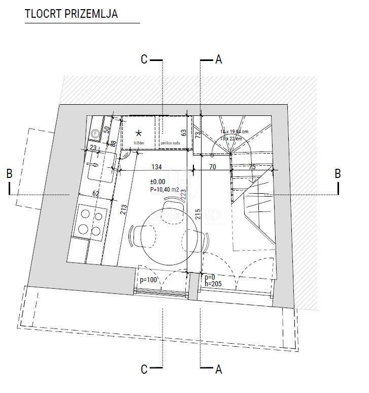
Istria, Rovigno – Città Vecchia Nel cuore della città vecchia di Rovigno, tra vicoli lastricati di pietra ricchi di storia e di fascino mediterraneo, si trova questa autentica casa in pietra – un’opportunità rara per creare un proprio rifugio in una delle località più desiderate dell’Adriatico. La casa si sviluppa su quattro livelli – piano terra, due piani superiori e mansarda – con una superficie utile complessiva di 51 m². Gli interni necessitano di una ristrutturazione completa; è già stato predisposto un progetto che prevede la ricostruzione interna senza modificare la struttura portante, con il rinnovo degli impianti, dei pavimenti, dei soffitti e delle pareti. Il futuro proprietario potrà così mantenere l’autenticità dell’architettura rovignese, adattandola però al comfort moderno. Al piano terra sono previsti la cucina, la zona pranzo e un piccolo bagno, mentre ai piani superiori si trovano gli spazi abitativi e le camere da letto. La casa è già collegata alla rete elettrica, idrica e fognaria pubblica, semplificando i lavori di ristrutturazione. Situata in una zona tranquilla della città vecchia, questa proprietà unisce autenticità, fascino storico e rara privacy – ideale come abitazione, casa vacanze o investimento con grande potenziale turistico.
ID: 1222579