Casa - ROVINJ - 499.000 EUR
| Posizione | ROVINJ, Istria |
| Prezzo € | 499.000 |
| Superficie | 186 m2 |
| Numero di camere | 4 |
| Superficie terrestre | 350 m2 |
| Bagni | 4 |
| Distanza dal mare | 0 m |
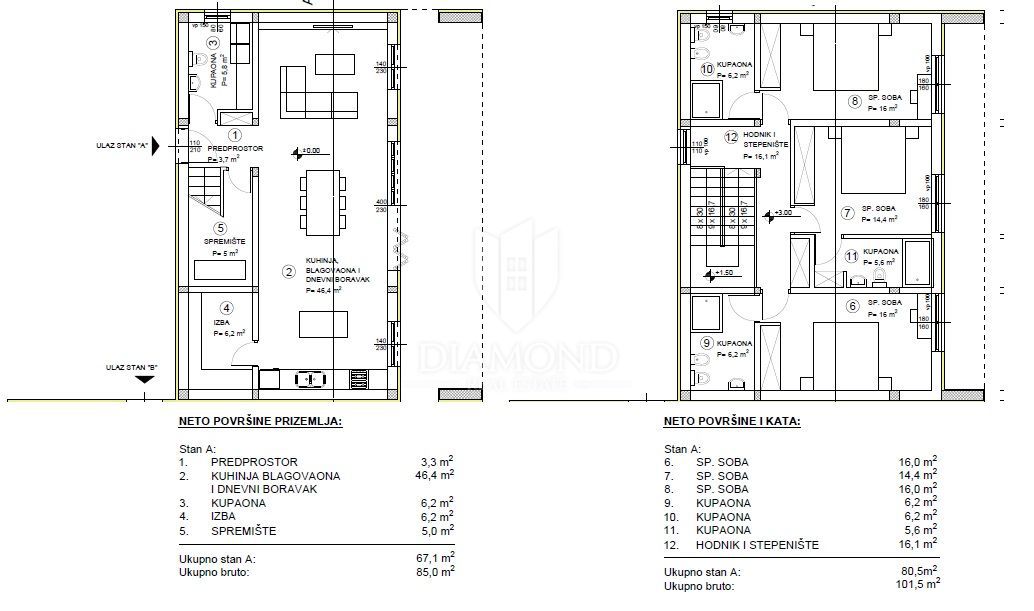
Istria, Rovigno, Dintorni, A soli pochi minuti di macchina da Rovigno, la popolarissima destinazione turistica, si trova questa nuova casa ideale per le vacanze o per la vita permanente. Situata in una strada tranquilla, la casa dista solo poche centinaia di metri da negozi, scuole e un asilo, offrendo così tutte le comodità necessarie nelle vicinanze. Questa casa bifamiliare è progettata con un'enfasi sulla privacy e un contatto minimo con i vicini. Si sviluppa su due piani con un totale di 147m2 di spazio utilizzabile, offrendo un ambiente abitativo confortevole. Il piano terra comprende un ingresso, un bagno per gli ospiti, un ripostiglio e un'ampia zona open space con cucina, sala da pranzo e soggiorno. Una parete di vetro lungo l'intera lunghezza dello spazio permette un'abbondante illuminazione e un accesso diretto alla piscina, al solarium e al giardino. Al piano superiore si trovano tre camere da letto, ciascuna con il proprio bagno. Questa proprietà offre un'ottima opportunità per l'affitto turistico grazie alla sua vicinanza a Rovigno o è una scelta ideale per la vita familiare grazie alla sua vicinanza a tutti i servizi necessari.
ID: 1076832