Casa - ROVINJ - 770.000 EUR
| Posizione | ROVINJ, Istria |
| Prezzo € | 770.000 |
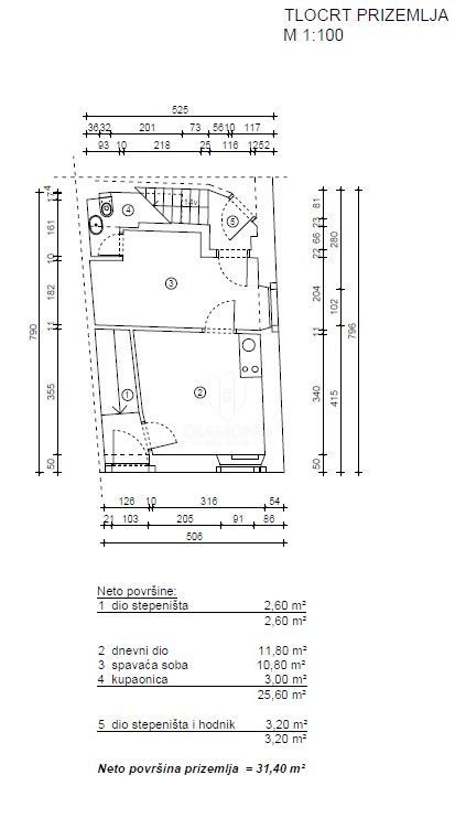
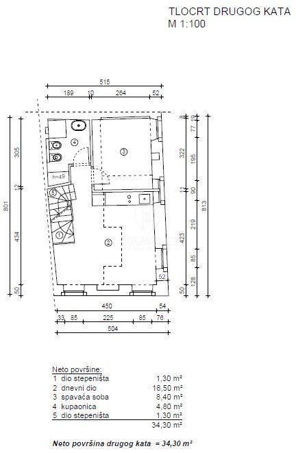
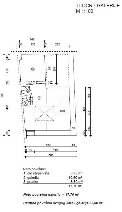
| Superficie | 142 m2 |
| Numero di camere | 8 |
| Bagni | 4 |
| Distanza dal mare | 0 m |
Istria, Rovigno, centro città Questa splendida casa si trova nel cuore di Rovigno, nel suggestivo e tranquillo centro storico, circondata da vicoli di pietra, negozi, ristoranti e attrazioni culturali. La posizione consente di godere dell’autentica atmosfera della città, offrendo allo stesso tempo tutti i vantaggi della vita urbana a portata di mano. La casa si sviluppa su quattro piani per un totale di 142 m², completamente ristrutturata nel 2018, pronta per essere abitata immediatamente o destinata all’affitto turistico. Il seminterrato attualmente è utilizzato come deposito con bagno, mentre il piano terra e il primo piano ospitano appartamenti indipendenti con cucina, sala da pranzo, soggiorno, camera da letto e bagno. Il secondo piano offre un appartamento su due livelli con cucina, sala da pranzo, camera da letto e bagno, mentre la galleria dispone di un piccolo soggiorno e una camera da letto aggiuntiva. La casa trasmette qualità e attenzione ai dettagli – infissi in legno, pavimenti in marmo e legno e scala in pietra ne esaltano l’eleganza. Il tetto, la facciata e gli impianti elettrici e idraulici nuovi garantiscono comfort duraturo, mentre il climatizzatore assicura riscaldamento e raffrescamento per tutto l’anno. Questa è un’opportunità rara per diventare proprietario di una casa completamente arredata nel cuore di Rovigno, ideale per vivere, investire o affittare a turisti. Organizzate una visita e scoprite l’unicità di questa proprietà.
ID: 1235064