Appartamento - SABUNIKE - 239.453 EUR
| Posizione | SABUNIKE, PRIVLAKA, Zara-Dalmazia-Nord |
| Prezzo € | 239.453 |
| Superficie | 82 m2 |
| Numero di camere | 3 |
| Bagni | 2 |
| Distanza dal mare | 600 m |
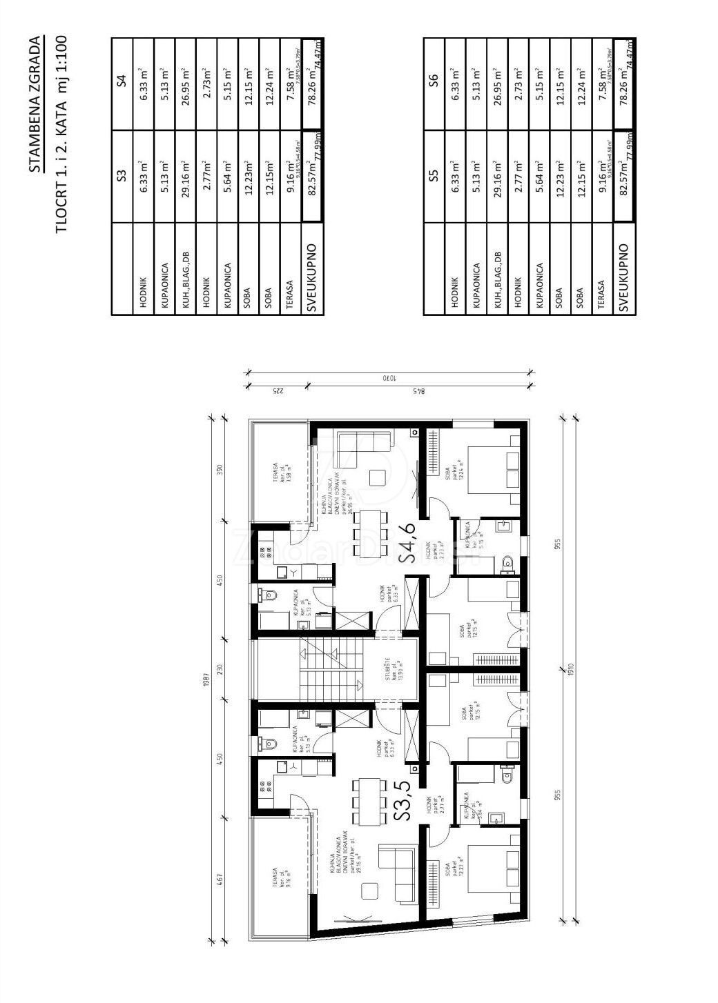
In vendita 3 appartamenti in un nuovo edificio nella zona di Sabunika con vista mare. Il completamento dei lavori è previsto per dicembre 2025. PRIMO PIANO Al primo piano si trovano 2 bilocali S3 e S4 con la stessa disposizione, con una superficie abitabile totale di 82,57 m² e 78,26 m². Sono composti da 2 corridoi, un soggiorno con cucina e sala da pranzo, 2 camere da letto, 2 bagni e una terrazza. Il prezzo dell'appartamento S3 è di 239.453,00 euro. Il prezzo dell'appartamento S4 è di 220.313,00 euro. Ogni appartamento dispone di un posto auto. SECONDO PIANO Al secondo piano si trova un bilocale S6, con una superficie abitabile totale di 78,26 m². È composto da 2 corridoi, un soggiorno con cucina e sala da pranzo, 2 camere da letto, 2 bagni e una terrazza. Il prezzo dell'appartamento è di 220.313,00 euro. Ogni appartamento dispone di un posto auto. DOTAZIONI DELL'APPARTAMENTO: - Piastrelle e sanitari in ceramica di alta qualità - Infissi in PVC con tapparelle elettriche e zanzariere - Porte d'ingresso tagliafuoco e antieffrazione - Riscaldamento a pavimento (nei bagni e nel soggiorno) - Aria condizionata inverter (diverse unità interne) Privlaka è una piccola cittadina di pescatori e turistica situata su un'ampia penisola sabbiosa vicino a Zara e alla città reale di Nin. Il mare pulito e cristallino e le baie sabbiose poco profonde la rendono ideale per il turismo familiare.
ID: 1274397