Appartamento - SAMOBOR - 345.000 EUR
| Posizione | SAMOBOR, Zagabria-Dintorni |
| Prezzo € | 345.000 |
| Superficie | 92 m2 |
| Numero di camere | 4 |
| Bagni | 2 |
| Vicino ai trasporti | Si |
| Distanza dal mare | 0 m |
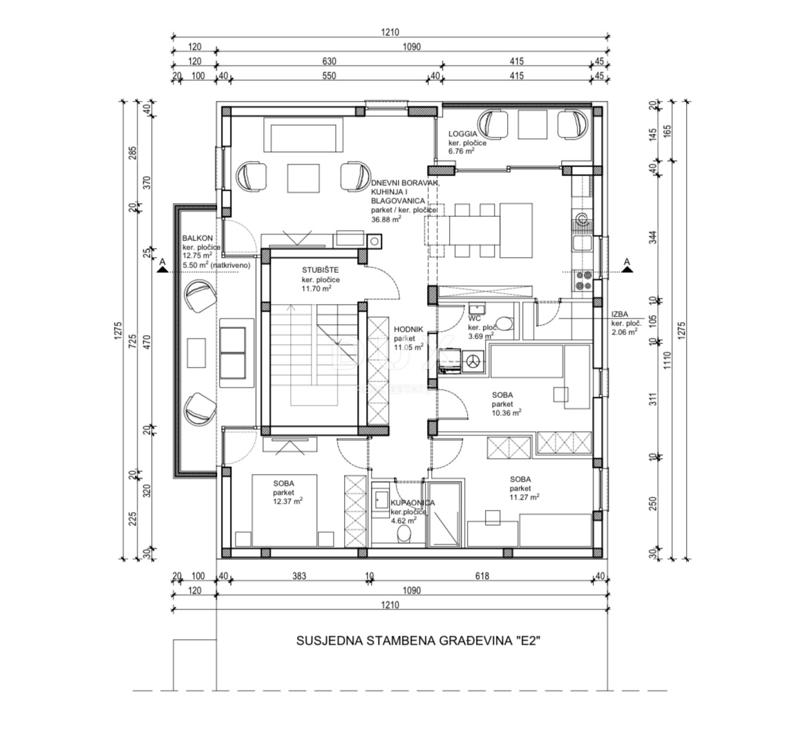
SAMOBOR, CENTRO - appartamento moderno in un nuovo edificio! Vi offriamo un appartamento moderno in un nuovo edificio con una superficie di 115,37 m² (con coefficiente = 105,09 m²), di cui 5,50 m² (coefficiente 0,75 = 4,13 m²) di balcone coperto, 7,25 m² (coefficiente 0,25 = 1,81 m²) di balcone scoperto e 6,76 m² (coefficiente 0,75 = 5,07 m²) di loggia, la cui costruzione inizierà questo autunno e il completamento previsto è entro la fine del prossimo anno. L'appartamento è composto da un corridoio, un ampio soggiorno, una cucina con sala da pranzo, tre accoglienti camere da letto, un bagno di servizio, un bagno moderno, una dispensa, un balcone coperto, un balcone scoperto e una loggia. L'appartamento dispone inoltre di un ripostiglio di 3,56 m² (coefficiente 0,5 = 1,78 m²). Soggiorno/cucina/sala da pranzo: 36,88 m² Camera da letto 1: 12,37 m² Camera da letto 2: 11,27 m² Camera da letto 3: 10,36 m² Corridoio: 11,05 m² WC: 3,69 m² Bagno: 4,62 m² Ripostiglio: 2,06 m² Balcone coperto: 5,50 m² (coefficiente 0,75 = 4,13 m²) Balcone scoperto: 7,25 m² (coefficiente 0,25 = 1,81 m²) Loggia: 6,76 m² (coefficiente 0,75 = 5,07 m²) Ripostiglio: 3,56 m² (coefficiente 0,5 = 1,78 m²) Totale: 115,37 m² (con coef. = 105,09 m²) Situato in una posizione privilegiata, a pochi minuti di auto dal centro Centro di Samobor, che consente un facile accesso a tutti i servizi essenziali: negozi, ristoranti, trasporti pubblici e altri servizi. Ideale per chi cerca uno spazio abitativo confortevole e pratico in un ambiente tranquillo, ma vicino a tutti i servizi necessari per la vita quotidiana. L'appartamento dispone inoltre di due posti auto esterni, che aumentano ulteriormente il comfort abitativo. Questo appartamento è un'opportunità perfetta per investimento o per vivere in un edificio nuovo e moderno in una posizione privilegiata! Gentili clienti, la commissione di agenzia viene addebitata in conformità con i Termini e Condizioni Generali: http://www.dux-nekretnine.hr/opci-uvjeti-poslovanja
ID: 1184422