Appartamento - SEGET DONJI - 400.000 EUR
| Posizione | SEGET DONJI, SEGET, Spalato-Dalmazia-Sud |
| Prezzo € | 400.000 |
| Superficie | 95 m2 |
| Numero di camere | 4 |
| Bagni | 2 |
| Distanza dal mare | 0 m |
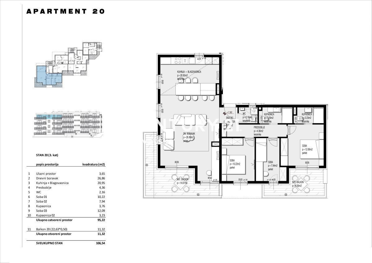
Nelle vicinanze di Trogir, mediamo la vendita di un edificio residenziale con 22 appartamenti, costruzione di qualità e design moderno, a 600 metri dal mare. L'appartamento 20 si trova al terzo piano dell'edificio, l'interno ha una superficie di 95,52 mq e dispone di due balconi con vista sul mare per una superficie totale di 22,63 mq. E' composto da un ingresso, un bagno, un wc, tre camere da letto di cui una con proprio bagno e due con accesso ad un balcone separato, ed un soggiorno e cucina con accesso al balcone. L'appartamento dispone di porte antiscasso e tagliafuoco, falegnameria di alta qualità con serramenti a triplo vetro, riscaldamento a pavimento in bagno. Sono state eseguite le prime fasi di installazione dei condizionatori. L'appartamento dispone anche di un posto auto Allo stato attuale, i clienti hanno la possibilità di scegliere dettagli come piastrelle e parquet. L'appartamento viene venduto chiavi in mano e la data prevista per il completamento dell'edificio è ottobre 2024. Il proprietario è una persona giuridica nel sistema IVA, quindi l'imposta sulle vendite immobiliari non viene pagata.
ID: 1118985