Tutti tipi
Case
Appartamenti
Terreni
Uffici
Provincia
...
Istria
Quarnaro
Spalato-Dalmazia-Sud
Ragusa
Sebenico-Dalmazia
Zara-Dalmazia-Nord
Zagabria
Bjelovarsko-bilogorska
Brodsko-posavska
Karlovac
Koprivniško-križevska
Krapinsko-zagorska
Ličko-senjska
Međimurje
Osijek-Baranja
Požeško-slavonska
Sisačko-moslavačka
Varaždinska
Virovitiško-podravska
Vukovarsko-srijemska
Zagabria-Dintorni
Comune
...
MURTER
SKRADIN
ŠIBENIK
CIVLJANE
VODICE
DRNIŠ
ROGOZNICA
UNEŠIĆ
RUŽIĆ
KNIN
PIROVAC
PRIMOŠTEN
PROMINA
TRIBUNJ
BISKUPIJA
Città
...
BILICE
BORAJA
BRODARICA
DANILO
DANILO BIRANJ
DONJE POLJE
DUBRAVA KOD ŠIBENIKA
GREBAŠTICA
JADRIJA
JADRTOVAC
KAPRIJE
KRAPANJ
LOZOVAC
RADONIĆ
RASLINA
ŠIBENIK
VRPOLJE
ZABLAĆE
ZATON
ZLARIN
ŽABORIĆ
ŽIRJE
Tipo
Tutti
Case
Appartamenti
Terreni
Uffici
Prezzo
da
a
Distanza dal mare (m)
da
a
Criterio
Più recenti
Meno recenti
Più costosi
Meno costosi
Cerca
Appartamento - ŠIBENIK - 265.302 EUR
Previous
Next
Posizione
ŠIBENIK, Sebenico-Dalmazia
Prezzo €
265.302
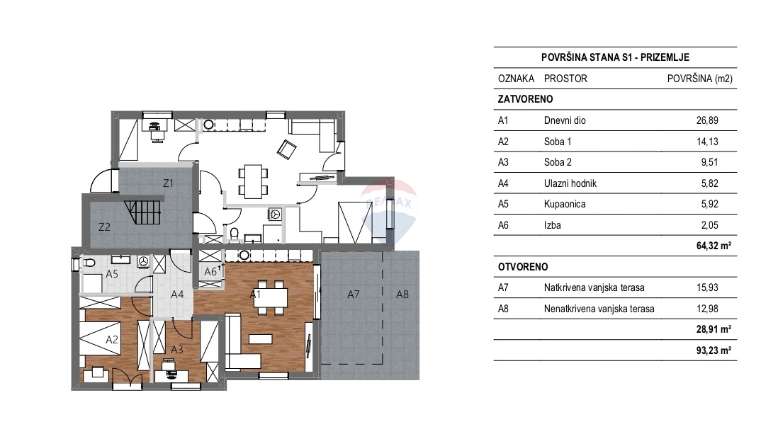
Superficie
78 m
2
Numero di camere
3
Bagni
1
Distanza dal mare
0 m
ID: 1223619
Invia messaggio
Nome
E-mail
Tel.
6 + 9 =
Messaggio
Invia
Annulla