Appartamento - ŠILO - 270.000 EUR
| Posizione | ŠILO, KRK, Quarnaro |
| Prezzo € | 270.000 |
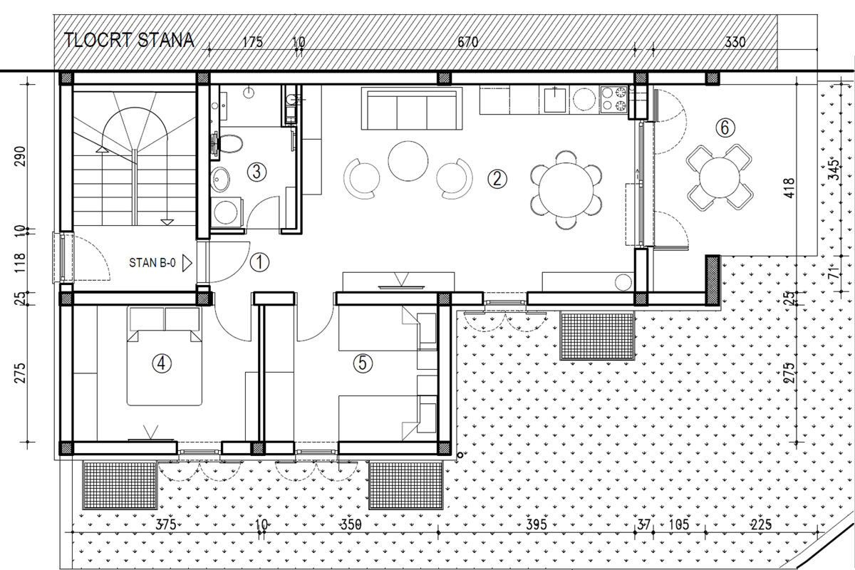
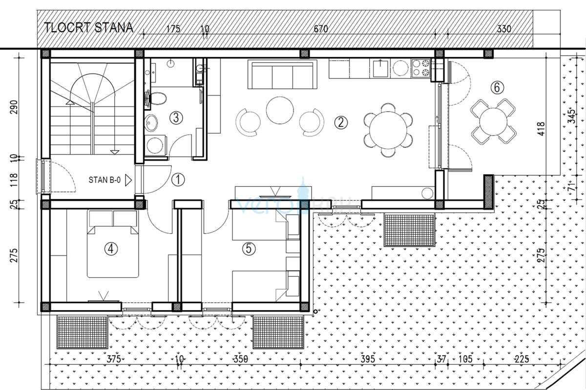
| Superficie | 66 m2 |
| Numero di camere | 3 |
| Bagni | 1 |
| Vicino ai trasporti | Si |
| Distanza dal mare | 0 m |
Isola di Krk, Šilo, appartamento bilocale al piano terra di una nuova costruzione. L'appartamento di 66,79 m2 si trova al piano terra di un edificio residenziale con 6 appartamenti. È composto da un ingresso, due camere da letto, un bagno e un locale che unisce soggiorno, cucina e sala da pranzo, da cui si accede alla terrazza esterna coperta. All'appartamento appartiene un posto auto di 12 m2, una cantina e un giardino di 138 m2. L'edificio è attualmente in fase di costruzione e il completamento dei lavori è previsto entro la fine del 2025. L'acquirente non paga l'imposta di registro, ma l'IVA è inclusa nel prezzo. Il mare e la spiaggia distano circa 300 m.
ID: 1193614