Terreno - ŠIŠAN - 139.000 EUR
| Posizione | ŠIŠAN, LIŽNJAN, Istria |
| Prezzo € | 139.000 |
| Superficie | 825 m2 |
| Vicino ai trasporti | Si |
| Distanza dal mare | 0 m |
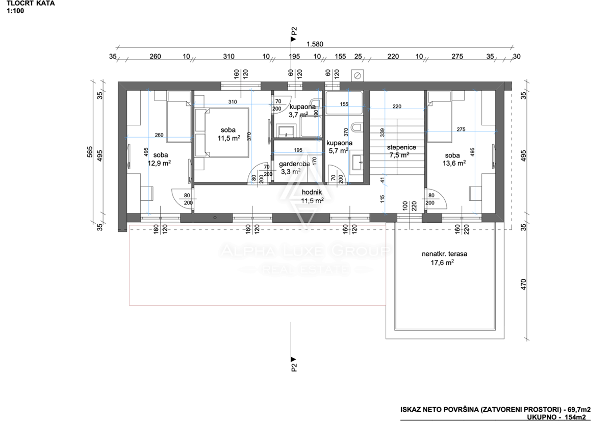
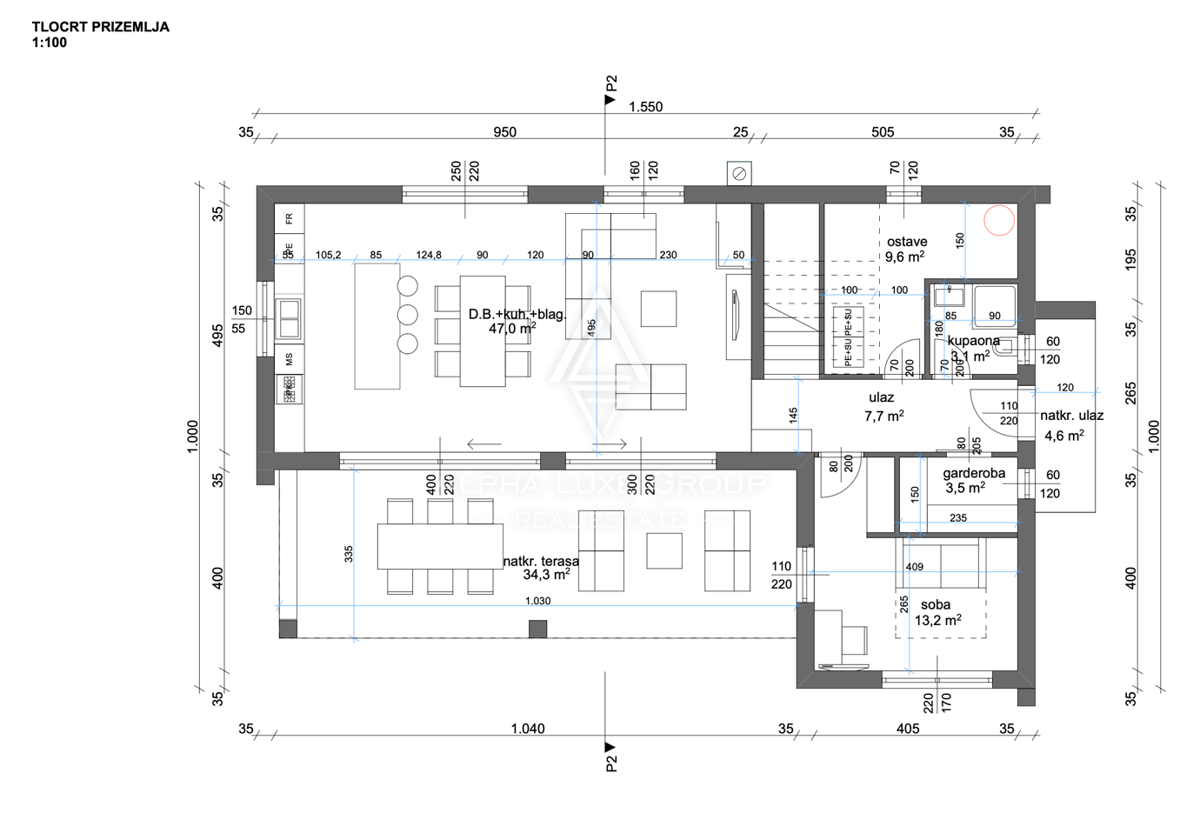
In una zona tranquilla e molto richiesta di Šišan, questo terreno edificabile di 825 m² rappresenta un’opportunità eccellente per chi desidera sviluppare una proprietà in Istria. Il terreno viene venduto con permesso di costruzione approvato per una moderna casa familiare su due piani con piscina, consentendo un avvio rapido ed efficiente dei lavori. È già disponibile un progetto architettonico completo, che riduce significativamente i tempi di preparazione e permette al futuro proprietario di iniziare la costruzione senza ulteriori fasi di pianificazione. Il progetto è stato attentamente sviluppato per combinare funzionalità, comfort e design contemporaneo, con particolare attenzione alla privacy e alla qualità della vita. La proprietà prevista è ideale sia come residenza permanente sia come investimento per affitti turistici ad alto rendimento. Un importante vantaggio è che il permesso di costruzione diventa legalmente valido il 16.04., consentendo l’inizio dei lavori quasi immediato. Questo elimina i ritardi amministrativi e aumenta notevolmente il valore dell’investimento, rendendo l’intero processo di sviluppo più rapido e sicuro. Šišan offre un ambiente residenziale tranquillo pur rimanendo ben collegato a destinazioni chiave come Pula. La zona è nota per il suo autentico carattere istriano, i dintorni naturali e la vicinanza a splendide spiagge lungo la costa meridionale. Con facile accesso a infrastrutture, ristoranti e servizi per il tempo libero, offre un perfetto equilibrio tra tranquillità e comodità. Questa è un’ottima opportunità per investitori o acquirenti privati che desiderano costruire una casa su misura in una delle località più richieste dell’Istria. La vostra soddisfazione è la nostra missione. Non vediamo l’ora di una futura collaborazione! Le visite dell’immobile sono organizzate esclusivamente previo firma di un contratto di mediazione, in conformità con la legge sulla mediazione immobiliare. La commissione di agenzia è del 3% + IVA ed è pagabile al momento della firma del contratto preliminare o del contratto definitivo di compravendita. https://istriaimmobili.it Fondati sulla fiducia. Definiti dai risultati.
ID: 1282692