Tutti tipi
Case
Appartamenti
Terreni
Uffici
Provincia
...
Istria
Quarnaro
Spalato-Dalmazia-Sud
Ragusa
Sebenico-Dalmazia
Zara-Dalmazia-Nord
Zagabria
Bjelovarsko-bilogorska
Brodsko-posavska
Karlovac
Koprivniško-križevska
Krapinsko-zagorska
Ličko-senjska
Međimurje
Osijek-Baranja
Požeško-slavonska
Sisačko-moslavačka
Varaždinska
Virovitiško-podravska
Vukovarsko-srijemska
Zagabria-Dintorni
Comune
...
SLAVONSKI BROD
BUKOVLJE
GARČIN
GORNJA VRBA
SLAVONSKI ŠAMAC
ORIOVAC
NOVA GRADIŠKA
SIBINJ
GORNJI BOGIĆEVCI
NOVA KAPELA
CERNIK
CittÃ
...
BRODSKI VAROŠ
PODVINJE
SLAVONSKI BROD
Tipo
Tutti
Case
Appartamenti
Terreni
Uffici
Prezzo
da
a
Distanza dal mare (m)
da
a
Criterio
Più recenti
Meno recenti
Più costosi
Meno costosi
Cerca
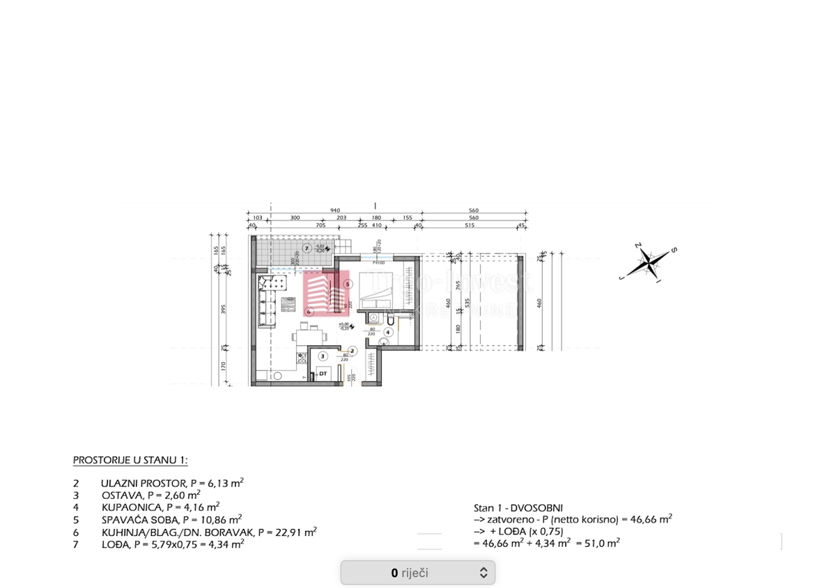
Appartamento - SLAVONSKI BROD - 112.200 EUR
Previous
Next
Posizione
SLAVONSKI BROD, Brodsko-posavska
Prezzo €
112.200
Superficie
51 m
2
Numero di camere
2
Bagni
1
Vicino ai trasporti
Si
Distanza dal mare
0 m
ID: 1260203
Invia messaggio
Nome
E-mail
Tel.
6 + 7 =
Messaggio
Invia
Annulla