Tutti tipi
Case
Appartamenti
Terreni
Uffici
Provincia
...
Istria
Quarnaro
Spalato-Dalmazia-Sud
Ragusa
Sebenico-Dalmazia
Zara-Dalmazia-Nord
Zagabria
Bjelovarsko-bilogorska
Brodsko-posavska
Karlovac
Koprivniško-križevska
Krapinsko-zagorska
Ličko-senjska
Međimurje
Osijek-Baranja
Požeško-slavonska
Sisačko-moslavačka
Varaždinska
Virovitiško-podravska
Vukovarsko-srijemska
Zagabria-Dintorni
Comune
...
NOVIGRAD
POREČ
VIŠNJAN
UMAG
VIŽINADA
BALE
ŽMINJ
BARBAN
MEDULIN
KANFANAR
ROVINJ
BUJE
BUZET
LABIN
GRAČIŠĆE
MARČANA
PAZIN
SVETVINČENAT
GROŽNJAN
KRŠAN
LUPOGLAV
CEROVLJE
TINJAN
LANIŠĆE
RAŠA
MOTOVUN
BRTONIGLA
SVETA NEDELJA
KAŠTELIR - LABINCI
OPRTALJ
SVETI LOVREČ
PULA
FAŽANA
FUNTANA
VODNJAN
LIŽNJAN
PIĆAN
KAROJBA
SVETI PETAR U ŠUMI
TAR-VABRIGA
VRSAR
Città
...
CERE
MALI GOLJI
MARTINSKI
NEDEŠĆINA
PARADIŽ
RUŽIĆI
SANTALEZI
SNAŠIĆI
ŠTRMAC
ŠUMBER
VELI GOLJI
VREĆARI
ŽUPANIĆI
Tipo
Tutti
Case
Appartamenti
Terreni
Uffici
Prezzo
da
a
Distanza dal mare (m)
da
a
Criterio
Più recenti
Meno recenti
Più costosi
Meno costosi
Cerca
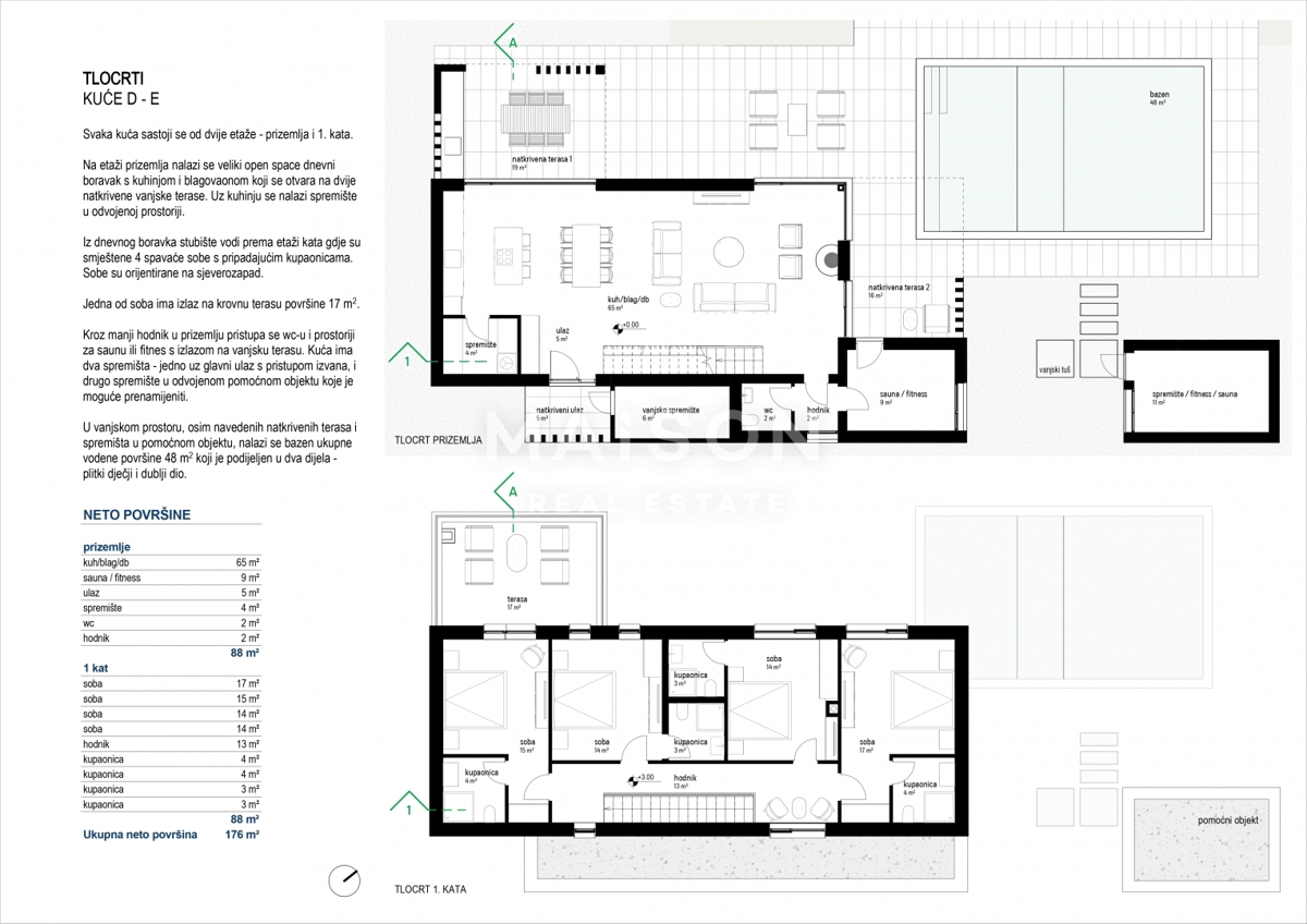
Casa - SNAŠIĆI - 986.000 EUR
Previous
Next
Posizione
SNAŠIĆI, SVETA NEDELJA, Istria
Prezzo €
986.000
Superficie
2642 m
2
Numero di camere
4
Superficie terrestre
2642 m
2
Bagni
5
Distanza dal mare
7000 m
ID: 1209404
Invia messaggio
Nome
E-mail
Tel.
4 + 2 =
Messaggio
Invia
Annulla