Appartamento - SRIMA - 716.000 EUR
| Posizione | SRIMA, VODICE, Sebenico-Dalmazia |
| Prezzo € | 716.000 |
| Superficie | 145 m2 |
| Numero di camere | 4 |
| Bagni | 2 |
| Vicino alla spiaggia | Si |
| Distanza dal mare | 0 m |
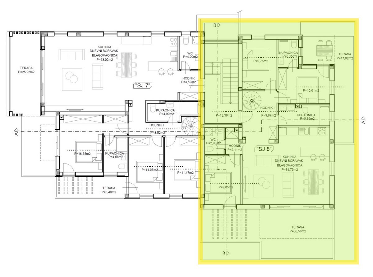
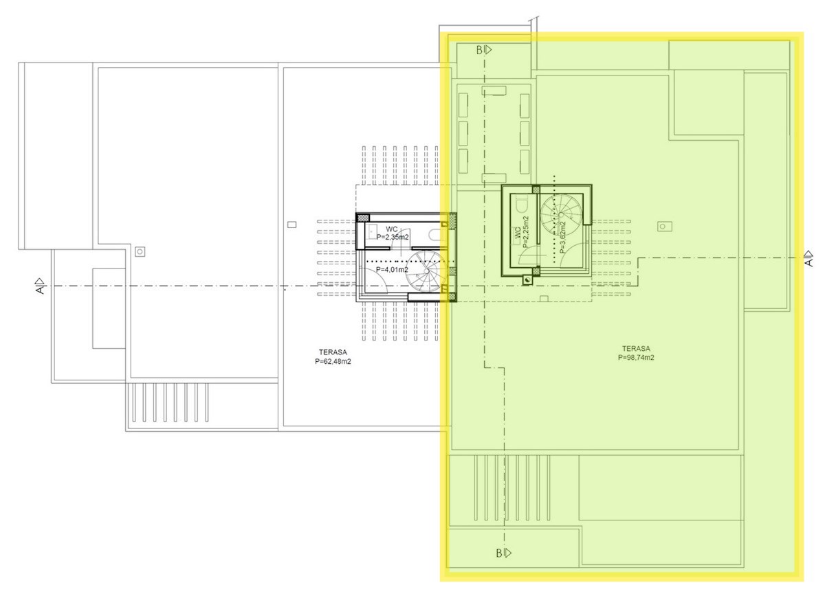
VODICE-SRIMA - in vendita attico completamente arredato e attrezzato con terrazza sul tetto, superficie abitabile di 94,12 m2 + terrazza di 143,12 m2 e parcheggio di 12,50 m2, superficie netta totale di 145,49 m2 L’appartamento si trova al secondo piano dell’edificio ed è composto da: ingresso, bagno comune, camera da letto 1, camera da letto con bagno privato e terrazza privata di 17,82 m2, anticamera, WC comune, camera da letto 3, cucina con sala da pranzo e soggiorno, oltre a terrazza di 30,56 m2, uscita sulla terrazza sul tetto dove si trova una splendida terrazza di 94,74 m2 con WC e predisposizione per cucina estiva. All’appartamento appartiene un posto auto attrezzato davanti all’edificio. Qualità e dotazioni: L’appartamento è stato costruito con particolare attenzione alla qualità, funzionalità e design moderno: porta d’ingresso antieffrazione e antincendio, porte interne di alta qualità dal design moderno infissi in PVC con vetri isolanti, persiane in alluminio con comando elettrico e zanzariere aria condizionata (riscaldamento e raffreddamento) con controllo Wi-Fi riscaldamento a pavimento elettrico nei bagni moderno sistema citofonico e impianto antenna impianti elettrici di qualità con interruttori moderni e illuminazione LED pavimenti: ceramica di alta qualità e laminato (12 mm) bagni dotati di sanitari e accessori di marca rinomata pareti interne trattate e tinteggiate di bianco ringhiere in vetro sulle terrazze per una vista massima ed eleganza Vantaggi aggiuntivi: allacciamento per stufa a combustibile solido sistema di evacuazione fumi nella scala allacciamenti indipendenti per acqua ed elettricità facciata con isolamento termico (sistema ROFIX) Questa proprietà rappresenta la perfetta combinazione di lusso, comfort e posizione attraente con una vista mozzafiato.
ID: 1273798