Terreno - STANKOVCI - 82.000 EUR
| Posizione | STANKOVCI, Zara-Dalmazia-Nord |
| Prezzo € | 82.000 |
| Superficie | 1000 m2 |
| Superficie terrestre | 1000 m2 |
| Distanza dal mare | 0 m |
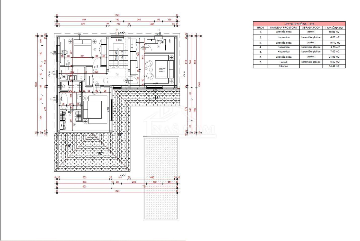
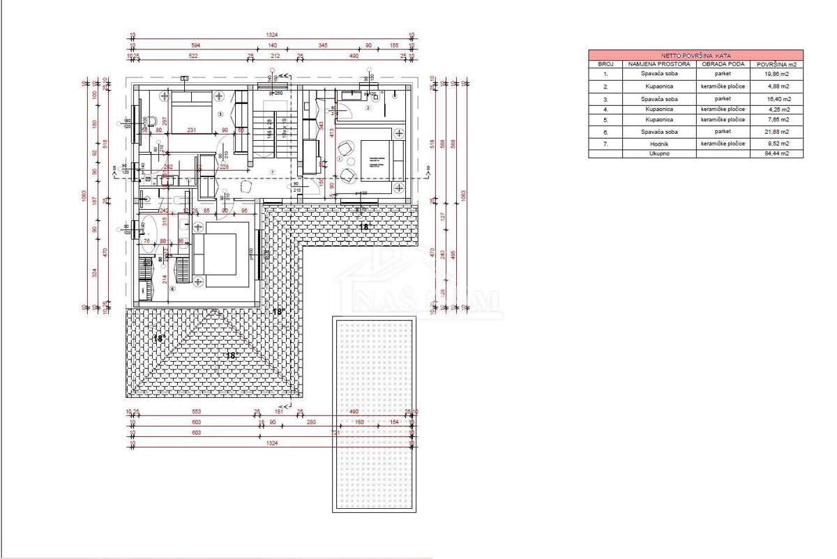
Stankovci, Radašinovci - in vendita terreno edificabile con permesso di costruzione per la costruzione di una casa con piscina. Il terreno ha una dimensione di 1001m2 e il permesso di costruzione è stato rilasciato per una casa a due piani con una superficie netta totale di 164,73m2. La casa ha due piani: il piano terra con una superficie netta di 80,29m2 è composto da un ingresso, bagno, wc, camera da letto, scala, cucina con sala da pranzo e soggiorno. Il piano intermedio con una superficie netta di 84,44m2 è composto da tre camere da letto, ciascuna con il proprio bagno e un corridoio. La casa si trova in una posizione tranquilla nel piccolo paese di Radašinovci, nell'entroterra di Zara. Ci sono in totale cinque lotti, di cui tre sono disponibili per la vendita al prezzo di 82000€. ID CODICE AGENZIA: 1835 La nostra casa Cell: +385 91 443 8701,+385 91 723 5581,+385 91 602 3656 Tel: +385 22 443 870 E-mail: nasdom22@gmail.com www.nasdom-vodice.com Informazioni aggiuntive: Permesso di costruzione: sì Tipo di terreno: edificabile Destinazione: residenziale
ID: 1123681