Terreno - ŠTOKOVCI - 130.000 EUR
| Posizione | ŠTOKOVCI, SVETVINČENAT, Istria |
| Prezzo € | 130.000 |
| Superficie | 4060 m2 |
| Distanza dal mare | 16000 m |
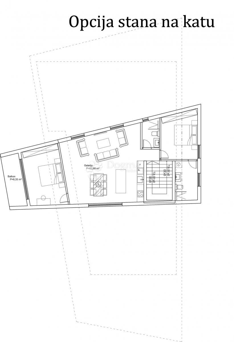
Situato nel cuore dell’Istria, Štokovci è un affascinante e tranquillo villaggio noto per la sua autentica atmosfera mediterranea. Circondato da verde, uliveti e vigneti, Štokovci offre la combinazione perfetta di serenità naturale e vicinanza ai servizi urbani. La sua ricca storia e tradizione, unite alla cordialità della comunità locale, lo rendono una scelta ideale per chi desidera vivere nell’idillio istriano con uno stile di vita rilassato. A pochi chilometri dalle rinomate destinazioni turistiche e spiagge, Štokovci è attraente sia per viverci che per le vacanze. Questo ampio terreno di 4060 m² comprende 1440 m² di area edificabile e 2620 m² di terreno agricolo. Dispone di un Progetto Concettuale per una villa moderna con piscina, ideale per una vita di lusso o come investimento per affitti turistici. Il progetto prevede una casa su due livelli: il piano terra comprende una cucina open space, una sala da pranzo e un soggiorno, due camere da letto con bagno privato, un ulteriore bagno, un garage e un ripostiglio, per una superficie interna totale di 144,25 m², mentre con le terrazze il piano terra arriva a 224,64 m². Il piano superiore include una galleria, un bagno e due terrazze per una superficie totale di 172,08 m². La terrazza coperta comprende una cucina estiva con camino, mentre nel giardino si trova una piscina, perfetta per godersi le calde giornate istriane. Il progetto si distingue per il design moderno e i dettagli curati, pensati per soddisfare anche i clienti più esigenti.
ID: 1188842