Appartamento - SUKOŠAN - 326.000 EUR
| Posizione | SUKOŠAN, Zara-Dalmazia-Nord |
| Prezzo € | 326.000 |
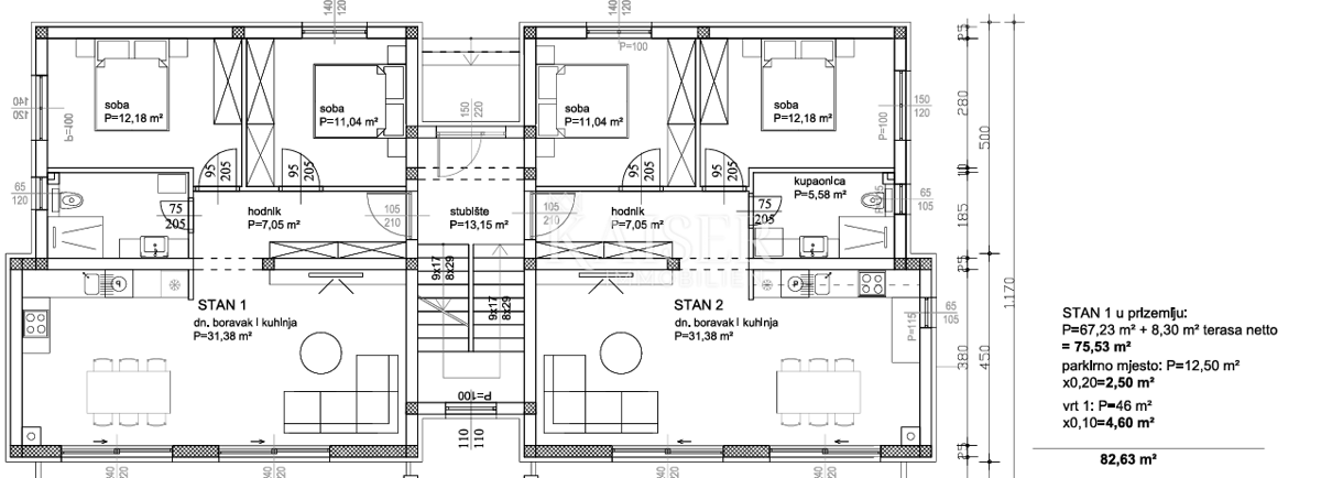
| Superficie | 93 m2 |
| Numero di camere | 3 |
| Bagni | 1 |
| Vicino ai trasporti | Si |
| Distanza dal mare | 200 m |
In vendita un appartamento in un nuovo edificio a Sukošan, a soli 200 metri dal mare e dalla spiaggia. L'edificio è composto da un totale di sei appartamenti distribuiti su due piani e il completamento dei lavori è previsto per giugno 2026. L'appartamento si trova al piano terra e ha una superficie totale di 93,23 m², di cui 67,23 m² di superficie netta, una terrazza coperta di 8,30 m², un posto auto di 2,50 m² e un giardino di 152 m² (15,20 m² di calcolo). L'appartamento è progettato in stile moderno ed è composto da un ampio soggiorno con cucina e sala da pranzo di 31,38 m², due camere da letto di 12,18 m² e 11,04 m², un bagno di 5,86 m², un corridoio e una terrazza coperta di 16,59 m² (8,30 m² di calcolo). Questo appartamento è particolarmente prezioso grazie all'ampio giardino di 152 m², che offre numerose possibilità: dalla creazione di un angolo verde privato a uno spazio per riunioni di famiglia, un barbecue o una piscina. Particolare attenzione è stata prestata alla qualità della costruzione e dell'arredamento. La struttura dell'edificio è in cemento armato con pareti in mattoni, sono stati installati serramenti in legno-alluminio di alta qualità e i pavimenti includono ceramiche italiane di prima qualità Marazzi e Mirage e parquet in rovere nelle camere da letto. Il bagno e il soggiorno sono dotati di riscaldamento a pavimento, mentre l'aria condizionata è fornita da un sistema multi-split Mitsubishi. Un ulteriore valore aggiunto è dato dalla pietra naturale nella scala e nell'ingresso dell'edificio, dai sanitari Villeroy & Boch, dalle porte blindate, dal parcheggio pavimentato con blocchi di cemento e dall'ambiente paesaggistico e orticolo. Sukošan è una località tranquilla e attraente situata a dieci chilometri a sud di Zara. È nota per il più grande porto turistico dell'Adriatico - Dalmazia, numerose splendide spiagge, mare limpido, taverne e ristoranti tradizionali, ma anche per gli ottimi collegamenti grazie alla vicinanza dell'autostrada e dell'aeroporto. Anche i parchi nazionali di Kornati, Krka e Paklenica si trovano nelle vicinanze, il che rende questo luogo perfetto per una vacanza, una vita o un investimento. Un appartamento a Sukošan rappresenta una combinazione di architettura moderna, attrezzature di alta qualità e una posizione ideale nelle immediate vicinanze del mare, il che lo rende una scelta eccellente per chiunque cerchi uno spazio abitativo di qualità o un investimento sicuro sull'Adriatico. Il prezzo non è fisso. La commissione dell'agenzia per l'acquirente è del 3% + IVA e viene pagata in caso di acquisto di un immobile, alla conclusione del primo atto legale. Contattateci con fiducia per maggiori informazioni e per fissare una visita. Tel: +385915404646 Email: vedran@kaiser-immobilien.hr
ID: 1210016