Tutti tipi
Case
Appartamenti
Terreni
Uffici
Provincia
...
Istria
Quarnaro
Spalato-Dalmazia-Sud
Ragusa
Sebenico-Dalmazia
Zara-Dalmazia-Nord
Zagabria
Bjelovarsko-bilogorska
Brodsko-posavska
Karlovac
Koprivniško-križevska
Krapinsko-zagorska
Ličko-senjska
Međimurje
Osijek-Baranja
Požeško-slavonska
Sisačko-moslavačka
Varaždinska
Virovitiško-podravska
Vukovarsko-srijemska
Zagabria-Dintorni
Comune
...
DUGO SELO
VRBOVEC
KRAVARSKO
SVETA NEDELJA
SVETI IVAN ZELINA
SAMOBOR
PISAROVINA
BRCKOVLJANI
BRDOVEC
ORLE
JASTREBARSKO
BISTRA
KRIŽ
VELIKA GORICA
IVANIĆ-GRAD
GRADEC
RUGVICA
PUŠĆA
KLINČA SELA
DUBRAVICA
STUPNIK
DUBRAVA
FARKAŠEVAC
ŽUMBERAK
ZAPREŠIĆ
PRESEKA
JAKOVLJE
KLOŠTAR IVANIĆ
MARIJA GORICA
LUKA
POKUPSKO
CittÃ
...
BIŠKUPEC ZELINSKI
BLAŠKOVEC
BLAŽEVDOL
BUKEVJE
BUNJAK
DONJA DRENOVA
DONJA ZELINA
DONJE OREŠJE
DONJE PSARJEVO
GORIČICA
GORNJA DRENOVA
GORNJE PSARJEVO
HRNJANEC
KOMIN
KRIŽEVČEC
MAJKOVEC
OBREŽ ZELINSKI
PAUKOVEC
SVETA HELENA
SVETI IVAN ZELINA
ZRINŠĆINA
Tipo
Tutti
Case
Appartamenti
Terreni
Uffici
Prezzo
da
a
Distanza dal mare (m)
da
a
Criterio
Più recenti
Meno recenti
Più costosi
Meno costosi
Cerca
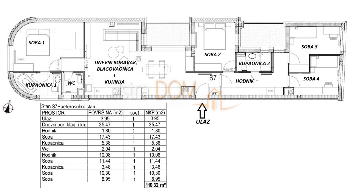
Appartamento - SVETI IVAN ZELINA - 288.925 EUR
Previous
Next
Posizione
SVETI IVAN ZELINA, Zagabria-Dintorni
Prezzo €
288.925
Superficie
116 m
2
Numero di camere
5
Bagni
5
Vicino ai trasporti
Si
Distanza dal mare
0 m
ID: 1229102
Invia messaggio
Nome
E-mail
Tel.
3 + 6 =
Messaggio
Invia
Annulla