Casa - SVETI LOVREČ PAZENATIČKI - 1.290.000 EUR
| Posizione | SVETI LOVREČ PAZENATIČKI, SVETI LOVREČ, Istria |
| Prezzo € | 1.290.000 |
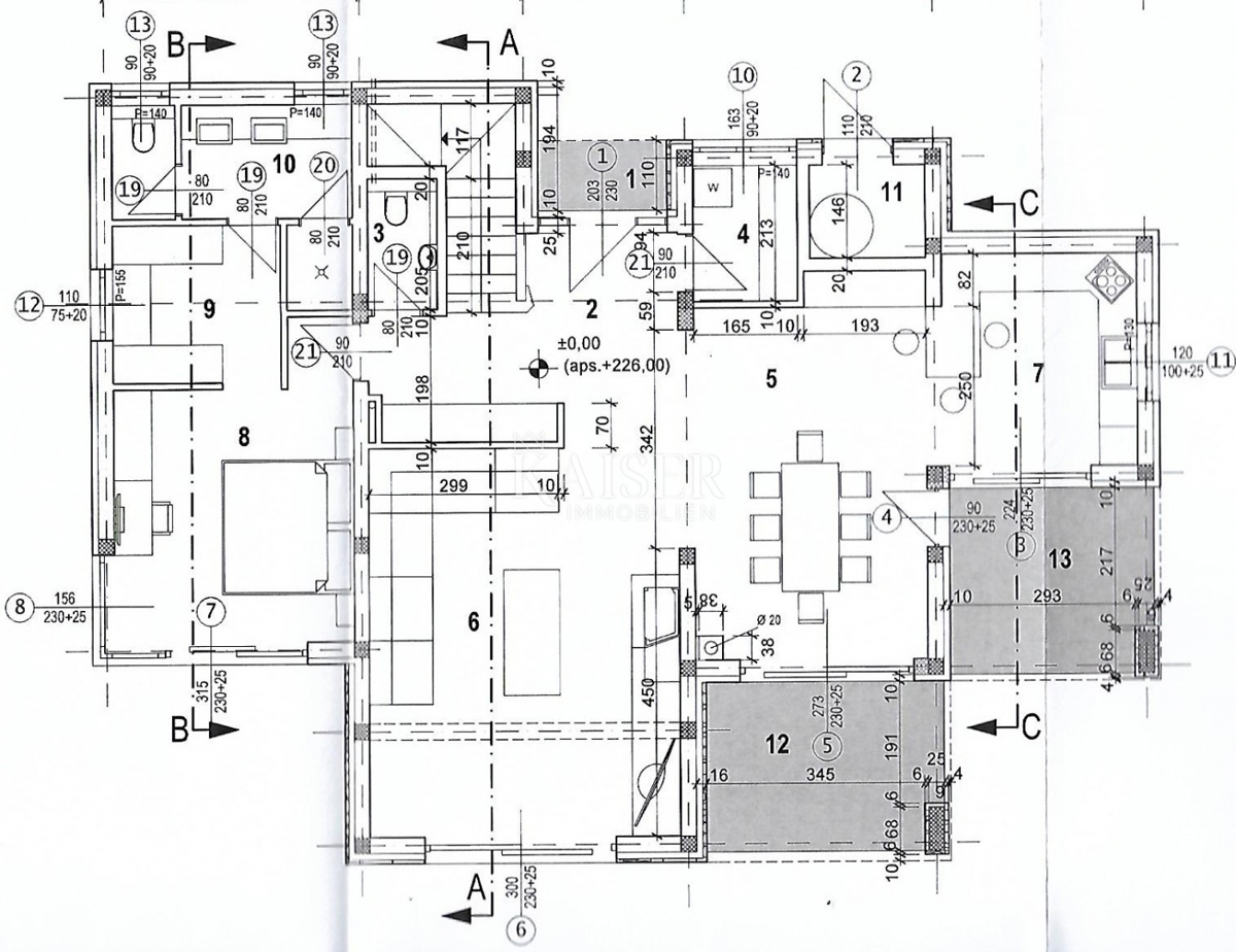
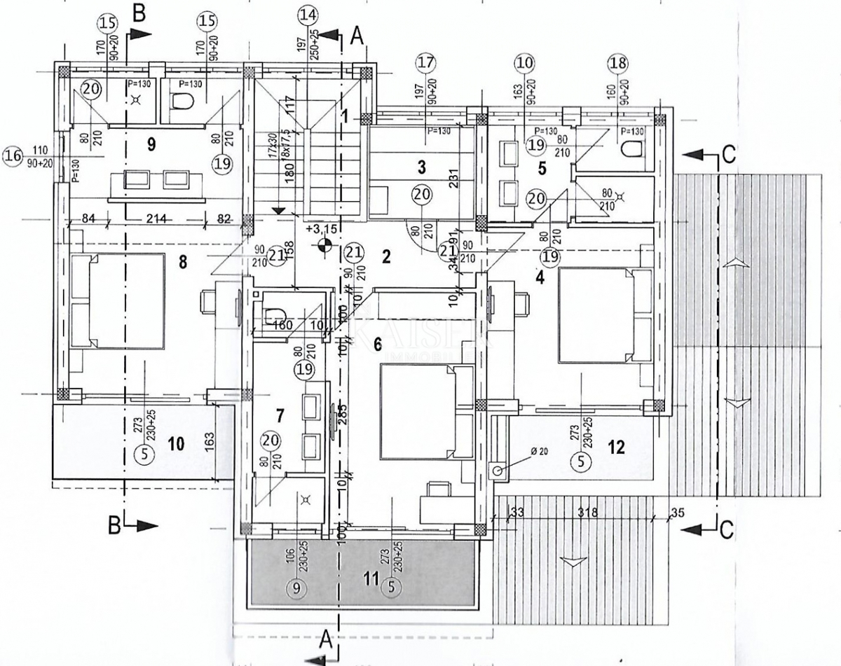
| Superficie | 300 m2 |
| Numero di camere | 5 |
| Superficie terrestre | 1140 m2 |
| Bagni | 5 |
| Distanza dal mare | 15000 m |
Kaiser Immobilien propone in vendita un'esclusiva villa con vista sul mare e sulle Alpi, non lontano dalla famosa e storica cittadina di San Lorenzo. In un ambiente splendido e tranquillo, non lontano da San Lorenzo, questa lussuosa villa sorge su un ampio terreno di 1.170 m². La posizione offre una vista spettacolare sul mare, sulle Alpi e, in parte, sulla chiesa di Sant'Eufemia a Rovigno, creando una perfetta combinazione di natura, comfort ed eleganza. La costruzione della villa è in fase finale e ai futuri proprietari verrà offerta la possibilità di arredare completamente gli interni con mobili italiani di alta qualità, in collaborazione con un rinomato studio di design. Considerando che la villa è in fase finale di costruzione, si sta lentamente preparando per la decorazione dei pavimenti e dei servizi igienici interni. Il permesso di esercizio sarà disponibile entro la fine dell'anno. Proprietà e documenti in regola. La villa si trova ai margini della cintura verde, con una vista sensazionale sul mare e sugli ulivi, e come tale è particolarmente attraente perché è l'ultima posizione per splendidi nuovi progetti. Caratteristiche della villa: - Serramenti in alluminio color antracite con triplo vetro, una combinazione di tende e persiane (a seconda della posizione) - Piscina a sfioro con troppopieno - Riscaldamento a pavimento in tutta la zona giorno - Rivestimenti: parquet in rovere a triplo strato nelle zone giorno; ceramiche italiane di alta qualità nei bagni e nei locali di servizio - Parcheggio privato recintato - Sistemi di sicurezza: telecamere ad alta risoluzione e sistema di allarme - Sauna al primo piano - Impianto di irrigazione automatico per il giardino - Edificio ausiliario nel cortile con cucina estiva, ripostiglio e servizi igienici Questa proprietà è la scelta ideale per chi cerca una combinazione di lusso, privacy e una vista indimenticabile. Per maggiori informazioni o per organizzare una visita, non esitate a contattarci. Distanza dalla proprietà alla città: Lovreč - Aeroporto di Pola, 45 km Lovreč - Lubiana, 162 km Lovreč - Vienna, 544 km Lovreč - Praga, 868 km Lovreč - Monaco di Baviera, 565 km Se stai cercando la proprietà dei tuoi sogni, questa è la tua occasione. Contattaci con fiducia a: telefono: 00385923782803 indirizzo email: ivana@kaiser-immobilien.hr Venditore: Ivana Gašparini. La commissione d'agenzia è del 3% + IVA e viene addebitata con il primo atto legale.
ID: 1203903