Casa - SVETVINČENAT - 425.000 EUR
| Posizione | SVETVINČENAT, Istria |
| Prezzo € | 425.000 |
| Superficie | 111 m2 |
| Numero di camere | 3 |
| Superficie terrestre | 614 m2 |
| Bagni | 2 |
| Distanza dal mare | 0 m |
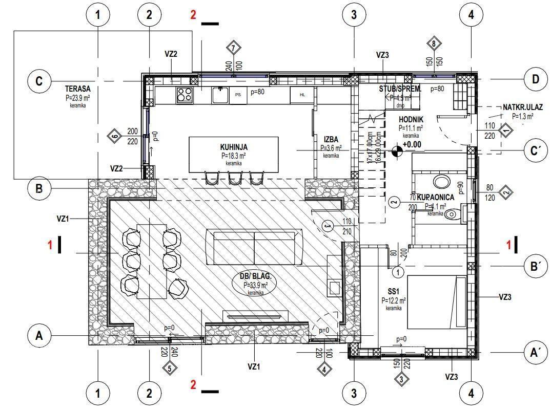
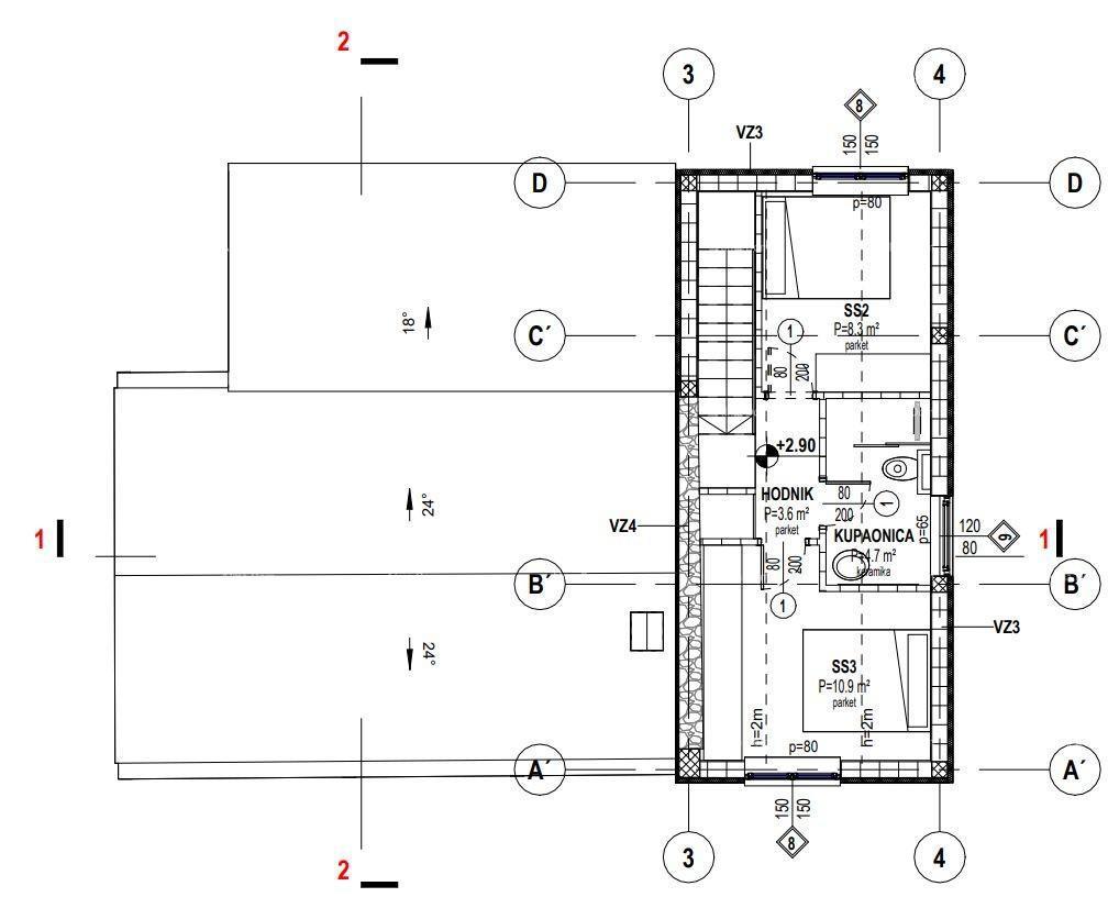
Proponiamo casa con piscina in costruzione. Si trova alla fine del paese, in una tranquilla strada senza uscita. La costruzione della casa, composta da un piano terra e un piano superiore, è iniziata. Al piano terra della casa c'è un soggiorno, una sala da pranzo (l'altezza del soffitto è di 5 m nel soggiorno e nella sala da pranzo) e una cucina open space, una dispensa, un bagno, un disimpegno, una camera da letto . Al primo piano si accede tramite una scala interna, al primo piano ci sono 2 camere da letto e un bagno. La terrazza esterna pavimentata è di 23 mq, la piscina è di 28 mq. Ha accesso da strada pubblica, è delimitato da muretti a secco su 3 lati. Il riscaldamento in casa è fornito da una pompa di calore. Camino in soggiorno. Condizionatori in tutte le stanze. INFORMAZIONI: azra@almadominvest.com +385 91 6115706 jelena@alma-nekretnine.com +385 98 323 264
ID: 1196809