Casa - SVETVINČENAT - 93.000 EUR
| Posizione | SVETVINČENAT, Istria |
| Prezzo € | 93.000 |
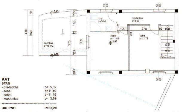
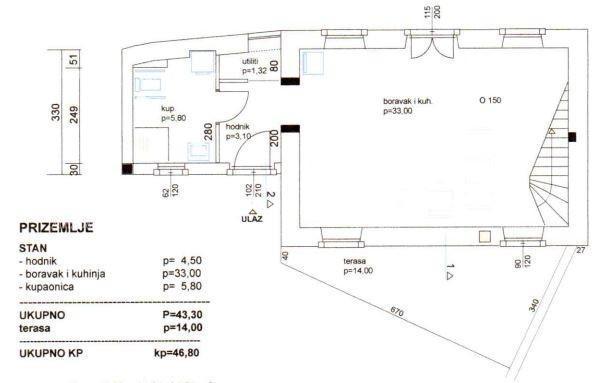
| Superficie | 100 m2 |
| Superficie terrestre | 110 m2 |
| Vicino alla spiaggia | Si |
| Distanza dal mare | 0 m |
In vendita è un'attraente casa in pietra con un progetto di ristrutturazione e un permesso di costruzione nell'incantevole cittadina medievale di Svetvinčenat, nel centro dell'Istria. Svetvinčenat è uno dei gioielli dell'Istria con una ricca offerta turistica e numerosi eventi che si svolgono negli spazi storici straordinariamente attraenti della città. Oltre ai monumenti storici e culturali, Sanvincenti è una destinazione privilegiata per tutti gli amanti dei sentieri ciclistici ed escursionistici. L'offerta è una casa da ristrutturare con un progetto e un permesso di costruzione. Il progetto è misto in modo tale che ai 60 mq del piano terra si aggiunge un altro piano di 40 mq, e accanto alla casa c'è anche un orto di 110 mq con spazio per un parcheggio. Per domande e visite contattateci a: Azra Valjevac azra@almadominvest.com +385 91 611 5706 alma@alma-nekretnine.com +38598 420 885
ID: 1225970